Appartamento in affitto a Modena (San Faustino), via Nicoli
Italiano
English
900 € / mese
65 m2
2 Camere
1 Bagni
1 Box / 1 Posti auto
Piano terra - senza ascensore
B

Appartamento in affitto a Modena (San Faustino), via Nicoli

AD1348 S. FAUSTINO, in ottima e tranquilla posizione disponiamo di APPARTAMENTO al piano terra, arredato di solo cucina, in piccola palazzina faccia vista con OTTIME FINITURE generali. composto da: INGRESSO INDIPENDENTE, soggiorno con angolo cottura, disimpegno, DUE CAMERE DA LETTO, bagno, ripostiglio e GIARDINO PRIVATO. Dotato di posto auto e garage. Euro 900/mese. No animali.
Caratteristiche principali Vedi tutte
Codice
AD1348_PT1
Città
Modena (San Faustino)
Categoria
Appartamento
Prezzo
900 € / mese
Spese condominiali
400 € / anno
Locali
3
Camere
2
Bagni
1
Mq
65
Box
1
Posti auto
1
Mq Balcone
6
Piano
Terra
Classe energetica
B
Stato Immobile
Buono
Grado
Medio
Giardino
Privato
Arredi
Solo Cucina
Tipo Soggiorno
Soggiorno
Tipo Cucina
Angolo Cottura
Riscaldamento
Autonomo
Tipo Riscaldam.
Caldaia
Tipo Impianto
Pavimento
Fonte Energetica
Gas
Acqua Calda
Autonoma
Infissi
Legno Doppio Vetro
Serramenti
Buono
Pavim. Giorno
Ceramica
Pavim. Notte
Ceramica
Pavim. Cucina
Ceramica
Pavim. Bagno
Ceramica
Cauzione
Tre Mesi
Canoni Anticipati
Un Mese
Tipo Contratto
4+4 Anni
Accesso Disabili
Nessuna Barriera
Tipo Registr.
Cedolare Secca

Accessori: Doppi Vetri, Impianto Satellitare, No Animali, Porta Blindata

Chiudi tutte
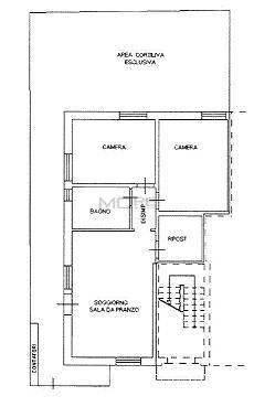
Planimetrie
Photo 1
Generali
Photo 1SOGG. ANG. COTTURA
SOGG. ANG. COTTURASOGG. ANG. COTT.
RIPOSTIGLIOCAMERA 1
CAMERA 1CAMERA 2
BAGNOBAGNO
BAGNOCORTILE PROVATO
CORTILE PRIVATOCORTILE PRIVATO
CORTILE PRIVATOGARAGE
POSTO AUTO
Mappa
via Nicoli , Modena (MO)
Agenzia di riferimento
Immobiliare Medaglie d'Oro
Immobiliare Medaglie d'Oro
Piazza Manzoni, 4/1
41124 Modena MO
Rif. Annuncio AD1348_PT1
Addetto alle vendite
GABALLO Lucia
GABALLO Lucia
Vantaggi GruppoMore
Puoi acquistare questo immobile anche rivolgendoti ad un altro Agente Immobiliare del Gruppo MORE
Guarda l'elenco
Richiedi informazioni
Invia
Condividi su
Condividi su Facebook Condividi su Twitter Condividi su Linkedin Condividi su Whatsapp
Cookie preference