4 o più locali in vendita a Nonantola via Ungaretti
Italiano
English
395.738 €
172,06 m2
3 Camere
2 Bagni
Piano terra - con ascensore
A4
0,4 kWh/m²a

4 o più locali in vendita a Nonantola via Ungaretti

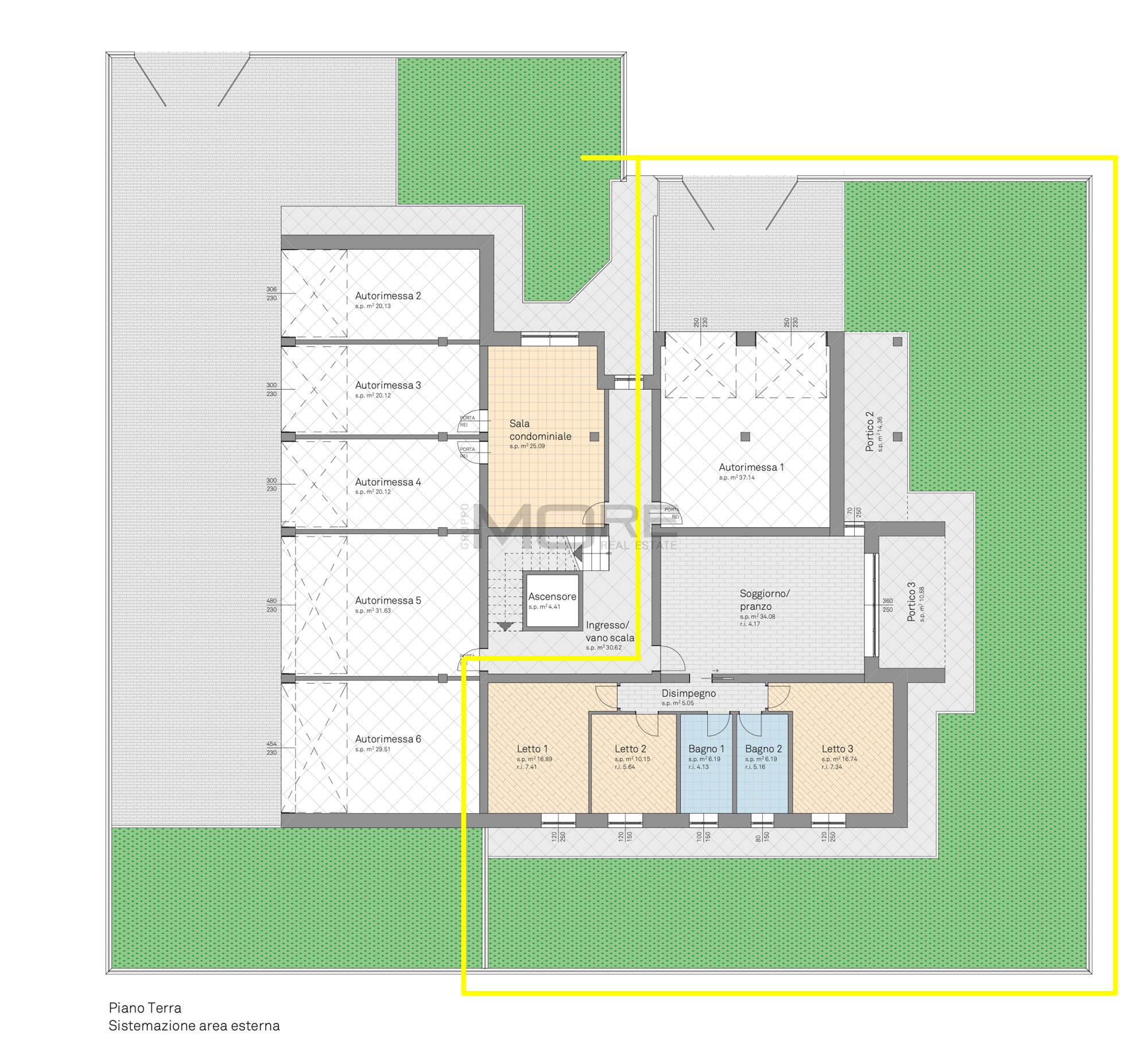
MO802D_1, Nostra esclusiva, Nonantola, in zona verde e residenziale palazzina di prossima realizzazione (Classe Energetica A4) disponibile appartamento con giardino privato di 172 mq. ubicato al piano terra di due.
App.to così disposto: ingresso nel soggiorno con angolo cottura, dis. notte, tre camere da letto (due matrimoniali e una singola) e due bagni. Dotato inoltre come pertinenze di autorimessa doppia.
Caratteristica peculiare dell’intervento è l’adozione di avanzate tecnologie impiantistiche d’avanguardia volte al massimo contenimento del consumo energetico nel pieno rispetto dell’ambiente, infatti tutte le unità immobiliari saranno edificate in classe “A4” (secondo la delibera della Regione Emilia Romagna dgr. 20 luglio 2015, n. 967).
Il capitolato prevede finiture di pregio tutte personalizzabili, pavimenti in ceramica grandi formati e parquet, rubinetterie e sanitari di design, riscaldamento a pavimento, aria condizionata, tapparelle motorizzate, impianto per il ricircolo dell'aria meccanizzato, pannelli fotovoltaici, domotica e predisposizione per antifurto e videosorveglianza condominiale.
Possibilità di personalizzazione degli spazi e delle finiture interne.
Prezzo: 395.738 €.
Consegna dicembre 2024
Per informazioni e visite: 335-6880908 geom. Fella Cristiano, 335-7853006 geom. Zara Costantino, 340-7710085 dott. Corica Giuseppe, 335-6917982 Mastrodomenico Emidio, 335- 6444800 dott. Gollini Enrico. In alternativa ulteriori info sul ns sito GRUPPOMORE.IT digitando CODICE DI RIFERIMENTO o inviaci una mail gestionecantieri-gruppomore@cataimm.it
Caratteristiche principali Vedi tutte
Codice
MO802D_1
Città
Nonantola
Categoria
4 o più locali
Prezzo
395.738 €
Locali
5
Camere
3
Bagni
2
Mq
172,06
Mq Giardino
300
Piano
Terra
Classe energetica
A4
0,4 kWh/m²a
Stato Immobile
Prossima Realizzazione
Grado
Signorile
Lati Liberi
3
Giardino
Privato
Tipo Soggiorno
Soggiorno
Tipo Cucina
Angolo Cottura
Riscaldamento
Conta Calorie
Tipo Riscaldam.
Caldaia
Tipo Impianto
Pavimento
Acqua Calda
Autonoma
Raffrescamento
Split
Infissi
PVC Doppio Vetro
Serramenti
Nuovo
Persiana
Tapparella PVC
Pavim. Giorno
Gres Porcellanato
Pavim. Notte
Parquet
Pavim. Cucina
Gres Porcellanato
Pavim. Bagno
Gres Porcellanato

Accessori: Aria Condizionata, Ascensore, Doppi Vetri, Impianto Fotovoltaico, Impianto Satellitare, Porta Blindata, Tapparelle Elettriche, Video Citofono, Zanzariere

Chiudi tutte
Planimetrie
PLAN. APP.TO 1
PLAN. APP.TO 1
Generali
RENDER ESTERNOAPP.TO 1
RENDER ESTERNORENDER ESTERNO
RENDER ESTERNORENDER ESTERNO
RENDER ESTERNO
Mappa
via Ungaretti , Nonantola (MO)
Agenzia di riferimento
Immobiliare Medaglie d'Oro
Immobiliare Medaglie d'Oro
Piazza Manzoni, 4/1
41124 Modena MO
Rif. Annuncio MO802D_1
Vantaggi GruppoMore
Puoi acquistare questo immobile anche rivolgendoti ad un altro Agente Immobiliare del Gruppo MORE
Guarda l'elenco
Richiedi informazioni
Invia
Condividi su
Condividi su Facebook Condividi su Twitter Condividi su Linkedin Condividi su Whatsapp
Cookie preference