Appartamento in vendita a Formigine (Casinalbo), Via sant'ambrogio
Italiano
English
445.000 €
135 m2
2 Camere
2 Bagni
1 Box
2° piano - con ascensore
A4
0,4 kWh/m²a

Appartamento in vendita a Formigine (Casinalbo), Via sant'ambrogio

VD860-UMI2(A8). Nostra esclusiva, Casinalbo, Borgo San Luigi - Ex Salumificio Maletti, in angolo verde comodo a tutti i servizi prossima realizzazione di comparto residenziale (Classe Energetica A4 - NZEB) composto da nr. 9 palazzine e due ville indipendenti. All'interno della palazzina UMI2A, di dieci unità abitative, vendesi app.to "A8" di 135 mq. comm. ubicato al piano secondo e ultimo con ascensore.
Caratteristica peculiare dell’intervento è l’adozione di avanzate tecnologie impiantistiche d’avanguardia volte al massimo contenimento del consumo energetico nel pieno rispetto dell’ambiente, infatti tutte le unità immobiliari saranno edificate in classe “A4” -NZEB (secondo la delibera della Regione Emilia Romagna dgr. 20 luglio 2015, n. 967).
Il capitolato prevede finiture di pregio tutte personalizzabili, pavimenti in ceramica grandi formati e parquet, rubinetterie e sanitari di design, riscaldamento in pompa di calore a pavimento, aria condizionata, impianto per il ricircolo dell'aria meccanizzato puntuale, pannelli fotovoltaici, addolcitore acque e predisposizione per antifurto.
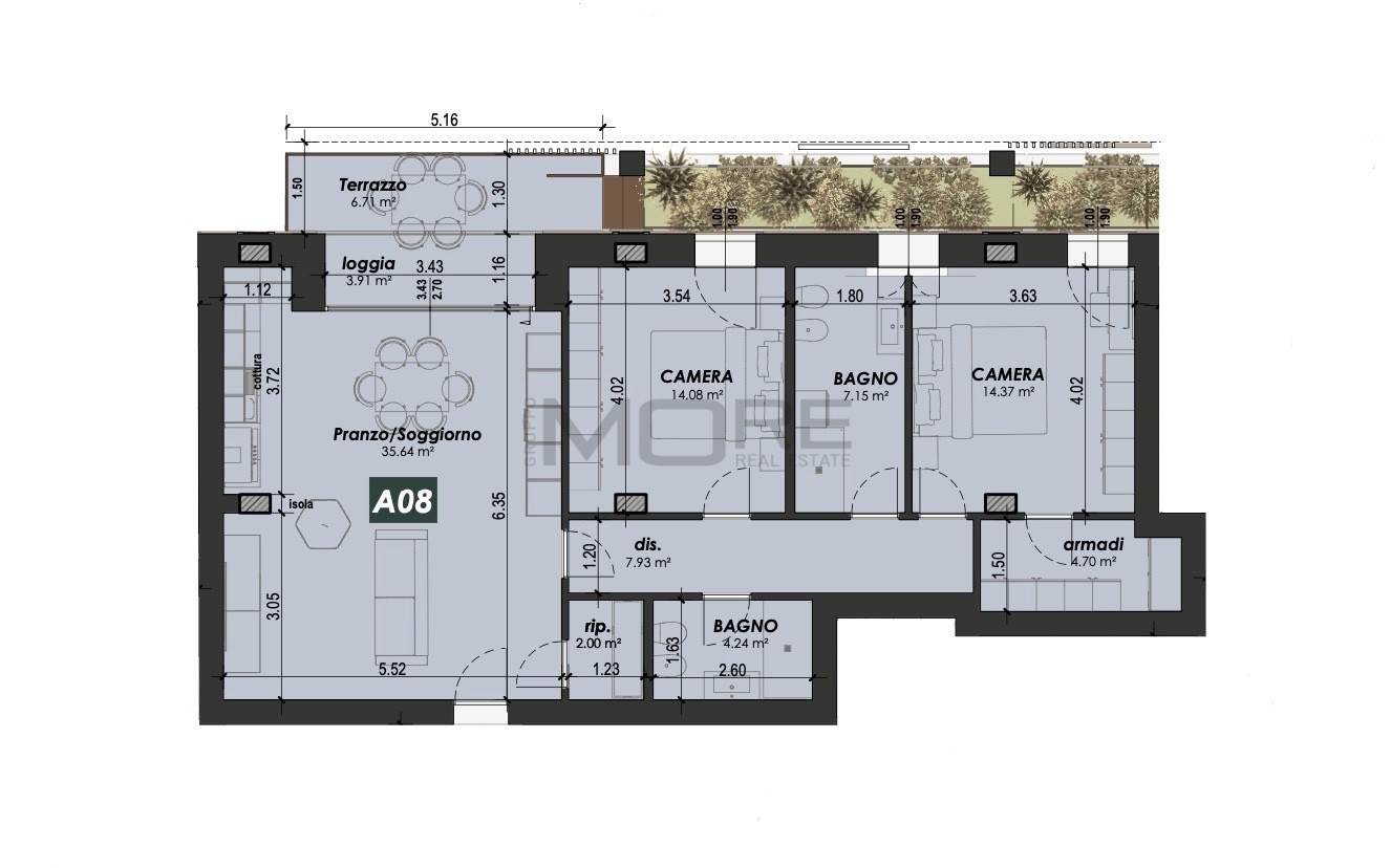
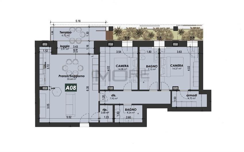
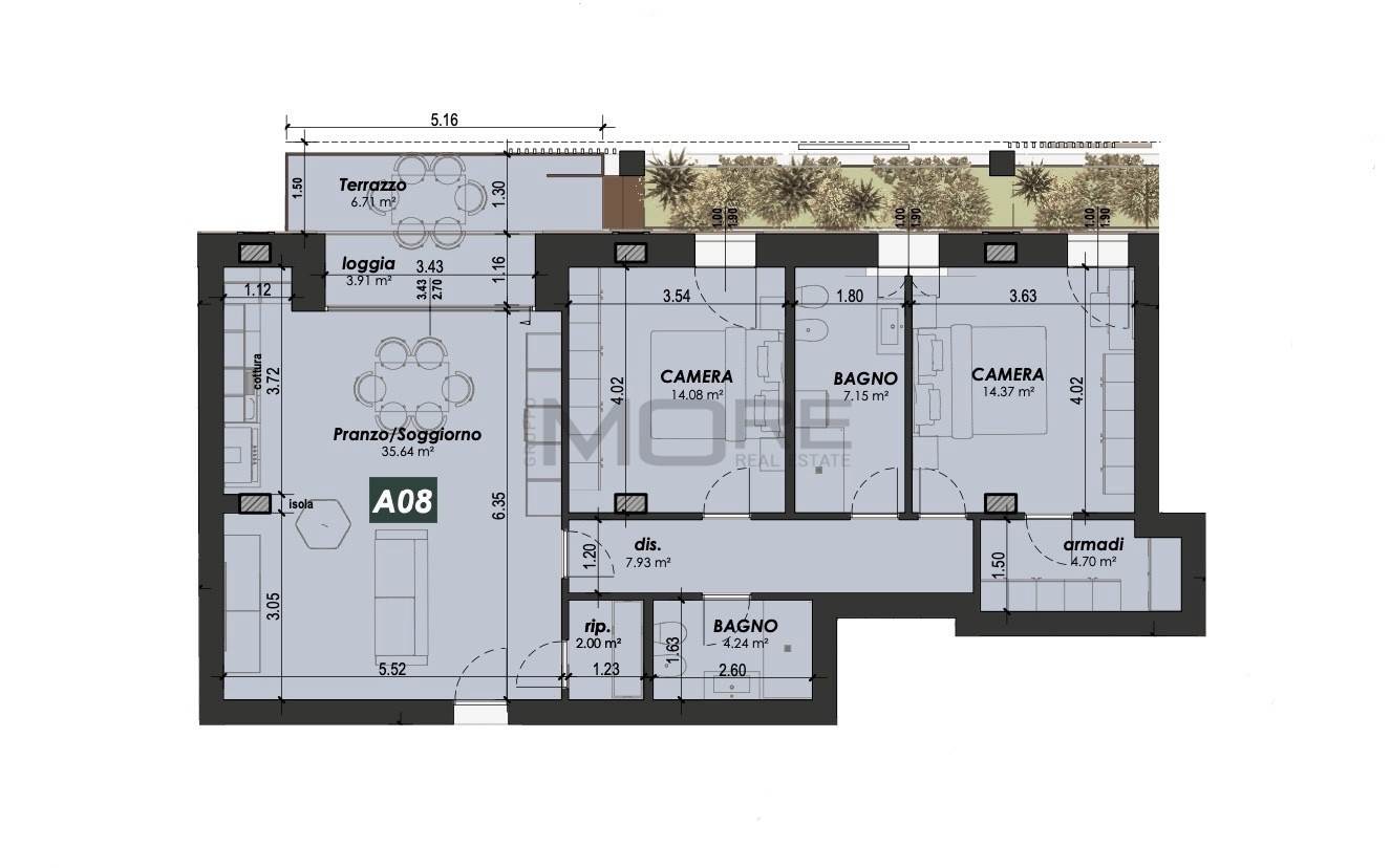
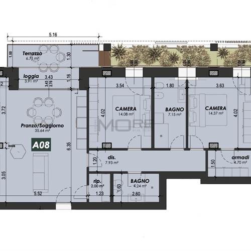
App.to così disposto: ingresso, soggiorno con sbocco sul terrazzo e giardino pensile, cucina a vista, ripostiglio, dis. notte, due camere da letto, cabina armadi e due bagni (uno cieco).
Possibilità di personalizzazione degli spazi e delle finiture interne.
Completo di ampio garage.
Prezzo: 445.000 €.
Consegna dicembre 2026.
Per informazioni e visite: 335-6880908 geom. Fella Cristiano, 335-7853006 geom. Zara Costantino.
In alternativa ulteriori info sul ns sito GRUPPOMORE.IT digitando CODICE DI RIFERIMENTO o inviaci una mail gestionecantieri-gruppomore@cataimm.it.it
Caratteristiche principali Vedi tutte
Codice
MO860D-UMI2(A8)
Città
Formigine (Casinalbo)
Categoria
Appartamento
Prezzo
445.000 €
Spese condominiali
1.000 € / anno
Locali
4
Camere
2
Bagni
2
Mq
135
Box
1
Mq Box
31
Terrazzi
2
mq Terrazzo
20
Piano
Secondo
Classe energetica
A4
0,4 kWh/m²a
Stato Immobile
In Costruzione
Grado
Signorile
Posizione
Centro
Panorama
Vista Aperta
Orientamento
Nord
Lati Liberi
2
Giardino
Privato
Arredi
Non Arredato
Tipo Soggiorno
Soggiorno
Tipo Cucina
A Vista
Riscaldamento
Conta Calorie
Tipo Riscaldam.
Pompa di Calore
Tipo Impianto
Pavimento
Fonte Energetica
Fotovoltaico
Acqua Calda
Centralizzata
Raffrescamento
Split
Infissi
Metallo Triplo Vetro
Serramenti
Nuovo
Persiana
Tapparella PVC
Pavim. Giorno
Parquet
Pavim. Notte
Parquet
Pavim. Cucina
Parquet
Pavim. Bagno
Ceramica
Accesso Disabili
Nessuna Barriera
Accesso interno disabili
Pieno accesso

Accessori: Antifurto, Aria Condizionata, Armadio a Muro, Ascensore, Bagno Handicap, Cancello Elettrico, Doppi Vetri, Impianto Fotovoltaico, Passaggio Automobilistico, Passaggio Pedonale, Porta Blindata, Rete Dati, Tapparelle Elettriche, Tavolini Esterni, Video Citofono, Video Sorveglianza, Zanzariere

Chiudi tutte
Planimetrie
Photo 1
Photo 2
Photo 3
Generali
Photo 1Photo 2
Photo 3Photo 4
Photo 5Photo 6
Photo 7Photo 8
Photo 9Photo 10
Photo 11Photo 12
Photo 13Photo 14
Mappa
Via sant'ambrogio , Formigine (MO)
Agenzia di riferimento
Immobiliare Medaglie d'Oro
Immobiliare Medaglie d'Oro
Piazza Manzoni, 4/1
41124 Modena MO
Rif. Annuncio MO860D-UMI2(A8)
Vantaggi GruppoMore
Puoi acquistare questo immobile anche rivolgendoti ad un altro Agente Immobiliare del Gruppo MORE
Guarda l'elenco
Richiedi informazioni
Invia
Condividi su
Condividi su Facebook Condividi su Twitter Condividi su Linkedin Condividi su Whatsapp
Cookie preference