Attico in vendita a Modena (Sant' Agnese)
Italiano
English
914.689 €
201 m2
3 Camere
2 Bagni
3° piano - senza ascensore
A4

Attico in vendita a Modena (Sant' Agnese)

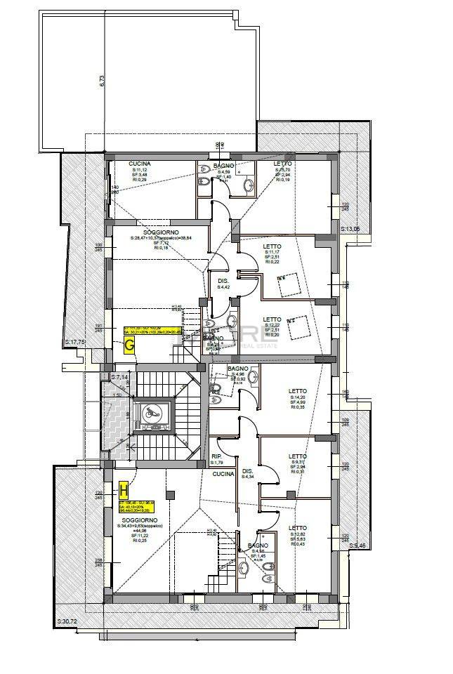
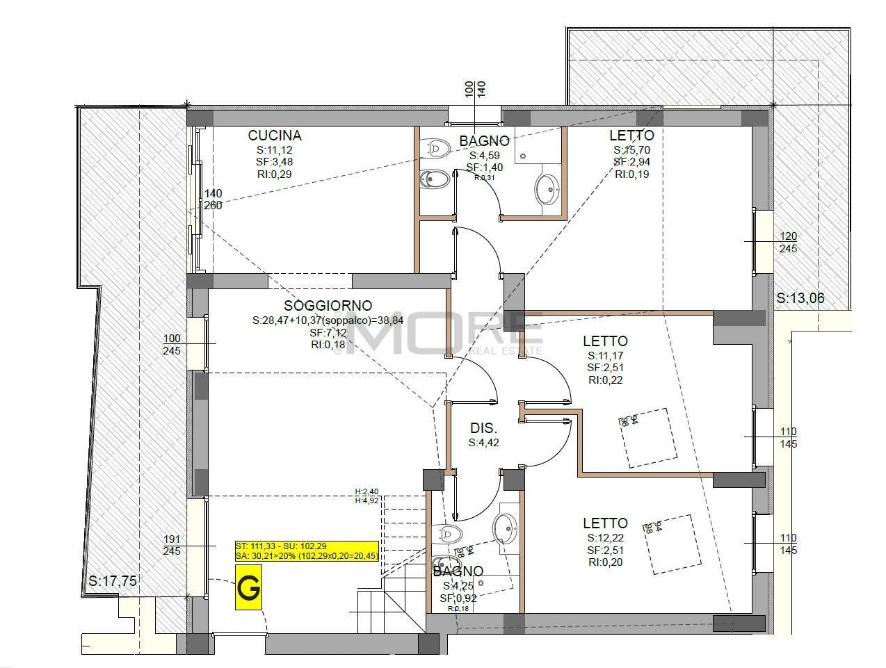
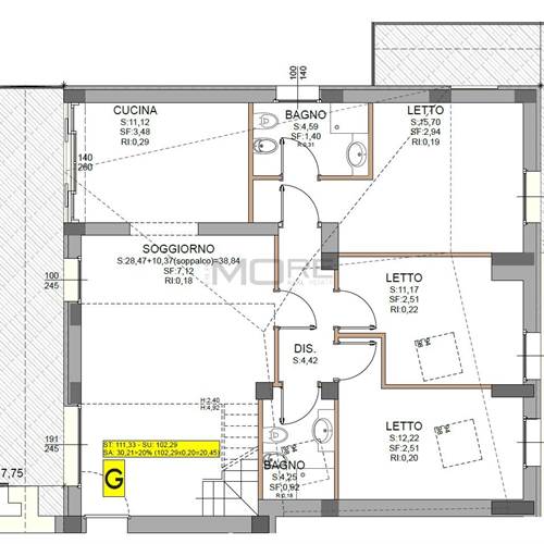
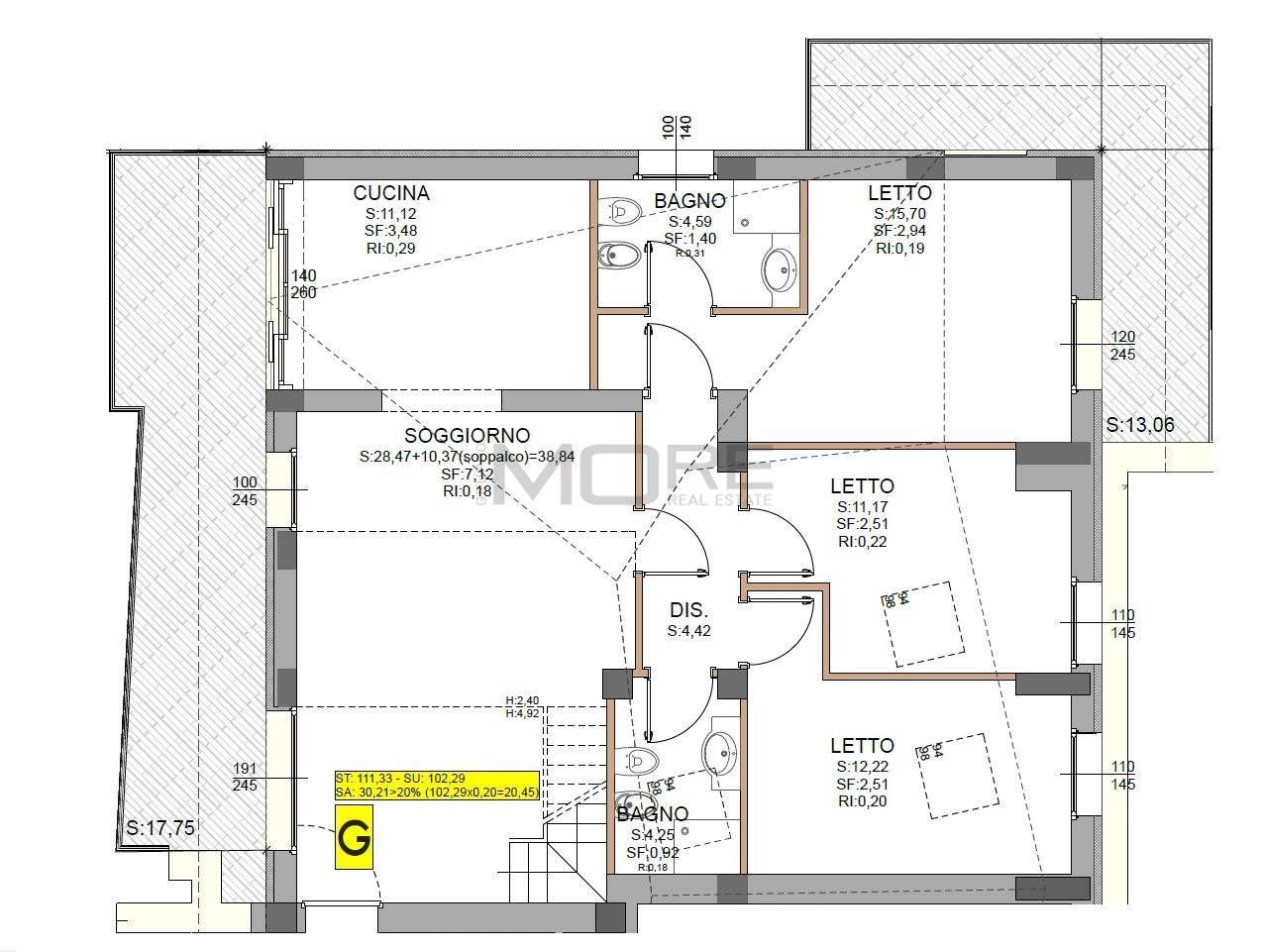
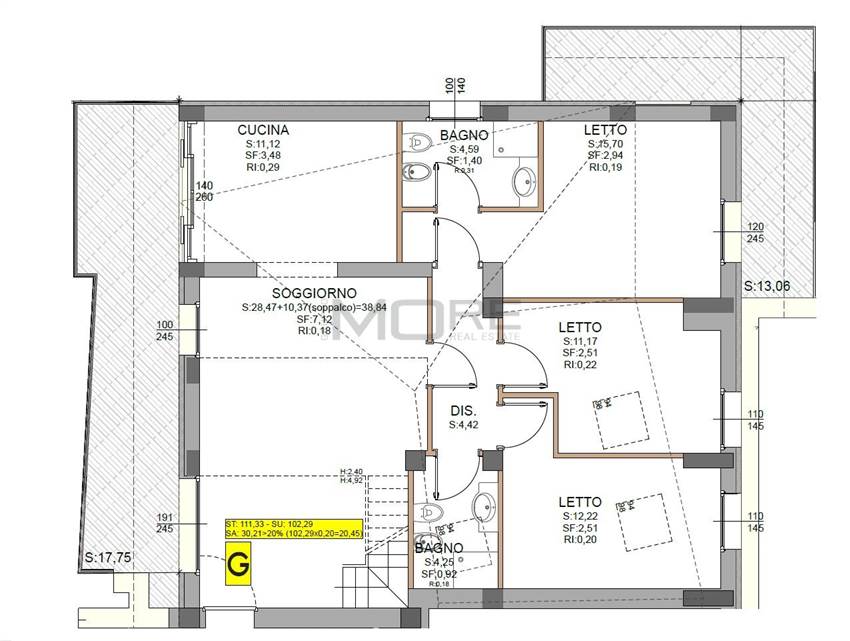
MO865E-G. Nostra esclusiva. Zona Sant'Agnese, Via Monchio, in palazzina di prossima realizzazione in Classe Energetica A4 di tre piani e otto unità vendesi attico "G" di 201 mq. comm. ubicato al piano terzo e ultimo con ascensore.
Caratteristica peculiare dell’intervento è l’adozione di avanzate tecnologie impiantistiche d’avanguardia volte al massimo contenimento del consumo energetico nel pieno rispetto dell’ambiente, infatti tutte le unità immobiliari saranno edificate in classe “A4” (secondo la delibera della Regione Emilia Romagna dgr. 20 luglio 2015, n. 967).
Il capitolato prevede finiture di pregio tutte personalizzabili, pavimenti in parquet (marca Foglie D'oro) e ceramiche grandi formati, rubinetterie e sanitari di design (marca Villeroy e Boch), riscaldamento autonomo a pavimento in pompa di calore, aria condizionata, pannelli fotovoltaici, infissi in pvc dotati di zanzariere e tapparelle motorizzate, addolcitore acque, videocitofono, videosorveglianza condominiale e predisposizione per antifurto.
Attico così disposto: ingresso, soggiorno con sbocco su loggia coperta, cucina abitabile con accesso al terrazzo, disimpegno notte, tre camere da letto (una dotata di balcone), due bagni e soppalco sovrastante il soggiorno per camera/studio.
Possibilità di personalizzazione degli spazi e delle finiture interne.
Possibilità di scelta tra diverse autorimesse e posti auto al piano terra a parte nel prezzo.
Prezzo: 914.689 €.
Consegna giugno 2027.
Per informazioni e visite: 340-7710085 dott. Corica Giuseppe, 348-8701469 Geom. Corica Maurizio,335-6444800 dott. Gollini Enrico, 335-6880908 geom. Fella Cristiano, 335-7853006 geom. Zara Costantino.
In alternativa ulteriori info sul ns sito GRUPPOMORE.IT digitando CODICE DI RIFERIMENTO o inviaci una mail gestionecantieri-gruppomore@cataimm.it.it
Caratteristiche principali Vedi tutte
Codice
MO865E-G
Città
Modena (Sant' Agnese)
Categoria
Attico
Prezzo
914.689 €
Spese condominiali
1.000 € / anno
Locali
8
Camere
3
Bagni
2
Mq
201
Balconi
1
Terrazzi
1
Piano
Terzo
Classe energetica
A4
Stato Immobile
In Costruzione
Grado
Signorile
Posizione
Centro
Panorama
Vista Aperta
Orientamento
Nord Ovest Sud Est
Lati Liberi
3
Giardino
Privato
Arredi
Non Arredato
Tipo Soggiorno
Soggiorno
Tipo Cucina
Abitabile
Riscaldamento
Autonomo
Tipo Riscaldam.
Pompa di Calore
Tipo Impianto
Pavimento
Fonte Energetica
Fotovoltaico
Acqua Calda
Autonoma
Raffrescamento
Split
Infissi
PVC Doppio Vetro
Serramenti
Nuovo
Persiana
Tapparella PVC
Pavim. Giorno
Ceramica
Pavim. Notte
Parquet
Pavim. Cucina
Ceramica
Pavim. Bagno
Ceramica
Accesso Disabili
Nessuna Barriera
Accesso interno disabili
Pieno accesso

Accessori: Antifurto, Aria Condizionata, Armadio a Muro, Cancello Elettrico, Doppi Vetri, Impianto Fotovoltaico, Passaggio Automobilistico, Passaggio Pedonale, Porta Blindata, Rete Dati, Tapparelle Elettriche, Tavolini Esterni, Video Citofono, Video Sorveglianza, Zanzariere

Chiudi tutte
Planimetrie
Photo 1
Photo 2
Generali
Photo 1Photo 2
Photo 3Photo 4
Photo 5Photo 6
Photo 7Photo 8
Agenzia di riferimento
Edilmoreali
Edilmoreali
Via Emilia Est, 164, p. 1
41124 Modena MO
Rif. Annuncio MO865E-G
Addetto alle vendite
Corica Dott. Giuseppe
Corica Dott. Giuseppe
Vantaggi GruppoMore
Puoi acquistare questo immobile anche rivolgendoti ad un altro Agente Immobiliare del Gruppo MORE
Guarda l'elenco
Richiedi informazioni
Invia
Condividi su
Condividi su Facebook Condividi su Twitter Condividi su Linkedin Condividi su Whatsapp
Cookie preference