Appartamento in vendita a Modena (Sacca), VIA DEL MERCATO
Italiano
English
325.000 €
109,24 m2
3 Camere
2 Bagni
2° piano - con ascensore
A4

Appartamento in vendita a Modena (Sacca), VIA DEL MERCATO

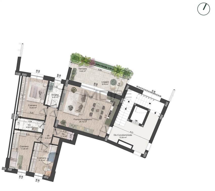
MO867B_C6 Nostra esclusiva, Via del Mercato, all'interno del nuovo comparto Ex Mercato Bestiame, nuova realizzazione di palazzina (Classe Energetica A4-NZEB) vendesi appartamento "C6" al piano secondo con ascensore, di 109 mq., loggia coperta e giardino pensile.
Caratteristica peculiare dell’intervento è l’adozione di avanzate tecnologie impiantistiche d’avanguardia volte al massimo contenimento del consumo energetico nel pieno rispetto dell’ambiente, infatti tutte le unità immobiliari saranno edificate in classe “A4” (secondo la delibera della Regione Emilia Romagna dgr. 20 luglio 2015, n. 967).
Il capitolato prevede finiture di pregio tutte personalizzabili, pavimenti in ceramica grandi formati, rubinetterie e sanitari di design, riscaldamento a pavimento, tapparelle frangisole motorizzate, impianto per il ricircolo dell'aria meccanizzato, pannelli fotovoltaici, predisposizione per antifurto e impianto di climatizzazione.
Appartamento così disposto: soggiorno/pranzo con cucina a vista, loggia coperta, giardino pensile, disimpegno, 3 camere da letto, due bagni (di cui uno cieco) e ripostiglio.
Possibilità di personalizzazione degli spazi e delle finiture interne.
Possibilità di scelta tra diverse autorimesse e posti auto interni a parte nel prezzo.
Prezzo: €. 325.000,00
Consegna ottobre 2027.
Per informazioni e visite: 335-6444800 dott. Gollini Enrico, 340-7710085 dott. Corica Giuseppe, 335-6917982 Mastrodomenico Emidio, 335-6880908 geom. Fella Cristiano, 335-7853006 geom. Zara Costantino.
In alternativa ulteriori info sul ns sito GRUPPOMORE.IT digitando CODICE DI RIFERIMENTO o inviaci una mail gestionecantierigruppomore@cataimm.it
Caratteristiche principali Vedi tutte
Codice
MO867B_C6
Città
Modena (Sacca)
Categoria
Appartamento
Prezzo
325.000 €
Locali
4
Camere
3
Bagni
2
Mq
109,24
Mq Giardino
4,84
Terrazzi
1
mq Terrazzo
15,55
Piano
Secondo
Classe energetica
A4
Stato Immobile
Prossima Realizzazione
Grado
Signorile
Orientamento
Sud Nord
Lati Liberi
2
Tipo Soggiorno
Soggiorno
Tipo Cucina
A Vista
Riscaldamento
Conta Calorie
Tipo Riscaldam.
Pompa di Calore
Tipo Impianto
Pavimento
Fonte Energetica
Fotovoltaico
Acqua Calda
Centralizzata
Raffrescamento
Predisposizione
Infissi
PVC Doppio Vetro
Serramenti
Nuovo
Persiana
Tapparella Metallo
Pavim. Giorno
Gres Porcellanato
Pavim. Notte
Gres Porcellanato
Pavim. Cucina
Gres Porcellanato
Pavim. Bagno
Gres Porcellanato
Accesso Disabili
Nessuna Barriera
Accesso interno disabili
Pieno accesso
Isolamento
Presente
Isolamento termico
Cappotto esterno
Isolamento acustico
Isolamento completo

Accessori: Antifurto, Aria Condizionata, Ascensore, Bagno Handicap, Cancello Elettrico, Doppi Vetri, Impianto Fotovoltaico, Impianto Satellitare, Passaggio Automobilistico, Passaggio Pedonale, Porta Blindata, Rete Dati, Ripostiglio, Tapparelle Elettriche, Video Citofono

Chiudi tutte
Planimetrie
1
1
2
2
3
3
4
4
Generali
Photo 1Photo 2
Photo 3Photo 4
Photo 5Photo 6
Photo 7
Mappa
VIA DEL MERCATO , Modena (MO)
Agenzia di riferimento
Bagatti Studio Immobiliare
Bagatti Studio Immobiliare
Via Mario Vellani Marchi, 70
41124 Modena MO
Rif. Annuncio MO867B_C6
Vantaggi GruppoMore
Puoi acquistare questo immobile anche rivolgendoti ad un altro Agente Immobiliare del Gruppo MORE
Guarda l'elenco
Richiedi informazioni
Invia
Condividi su
Condividi su Facebook Condividi su Twitter Condividi su Linkedin Condividi su Whatsapp
Cookie preference