Appartamento in vendita a Modena (Morane), VIA FELICIA BARTOLOTTA
Italiano
English
381.522 €
115,61 m2
3 Camere
2 Bagni
3° piano - con ascensore
A4

Appartamento in vendita a Modena (Morane), VIA FELICIA BARTOLOTTA

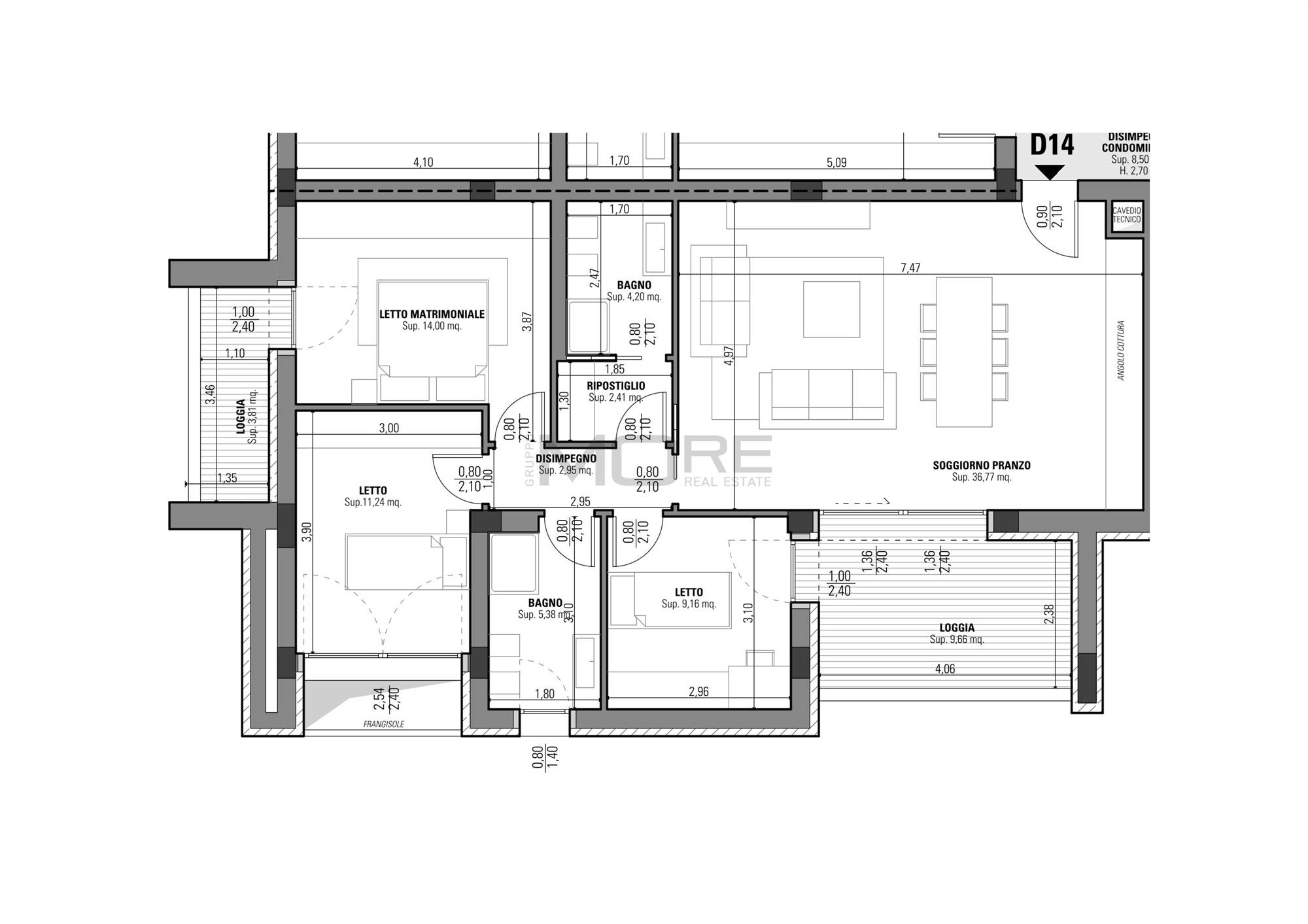
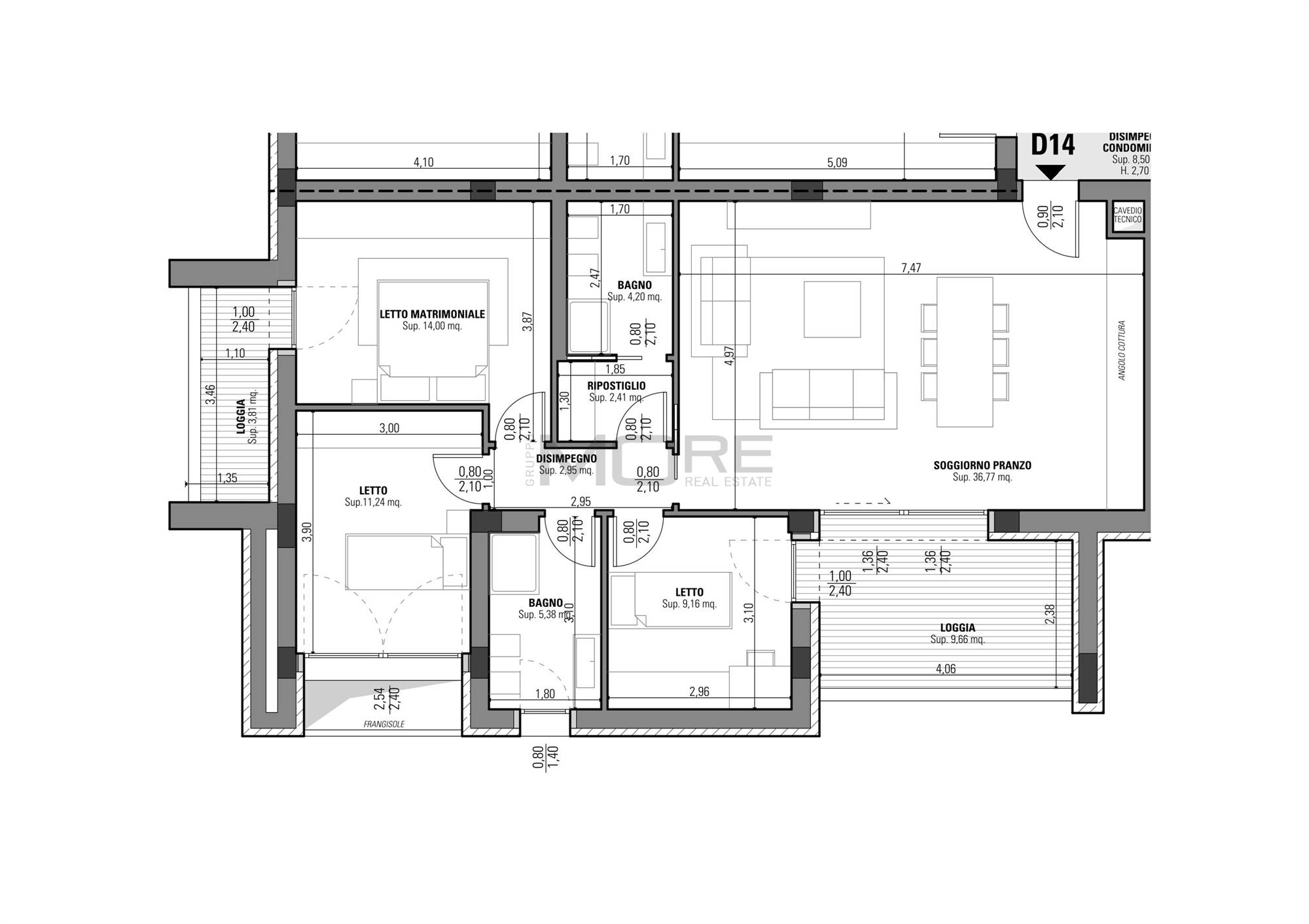
MO876B_D14. Nostra esclusiva, Via Felicia Bartolotta, all'interno del nuovo comparto Estense, vendesi appartamento "D14" al piano terzo di 115 mq. con due logge coperte.
Caratteristica peculiare dell’intervento è l’adozione di avanzate tecnologie impiantistiche d’avanguardia volte al massimo contenimento del consumo energetico nel pieno rispetto dell’ambiente, infatti tutte le unità immobiliari saranno edificate in classe “A4” (secondo la delibera della Regione Emilia Romagna dgr. 20 luglio 2015, n. 967).
Il capitolato prevede finiture di pregio tutte personalizzabili, pavimenti in ceramica grandi formati, rubinetterie e sanitari di design, riscaldamento a pavimento, tapparelle motorizzate in alluminio coibentato, zanzariere, impianto di ricambio automatico dell'aria, pannelli fotovoltaici, predisposizione per impianto di climatizzazione e allarme antintrusione.
Appartamento così disposto: soggiorno/pranzo con cucina a vista, loggia, disimpegno, tre camere da letto (di cui una dotata di loggia), due bagni e ripostiglio.
Possibilità di personalizzazione degli spazi e delle finiture interne.
Possibilità di scelta tra diverse autorimesse e posti auto interni a parte nel prezzo.
Prezzo: €.381.522
Consegna dicembre 2028.
Per informazioni e visite: 335-6444800 dott. Gollini Enrico, 340-7710085 dott. Corica Giuseppe, 335-6917982 Mastrodomenico Emidio, 335-6880908 geom. Fella Cristiano, 335-7853006 geom. Zara Costantino.
In alternativa ulteriori info sul ns sito GRUPPOMORE.IT digitando CODICE DI RIFERIMENTO o inviaci una mail gestionecantierigruppomore@cataimm.it
Caratteristiche principali Vedi tutte
Codice
MO876B_D14
Città
Modena (Morane)
Categoria
Appartamento
Prezzo
381.522 €
Locali
4
Camere
3
Bagni
2
Mq
115,61
Balconi
2
Mq Balcone
18,7
Piano
Terzo
Classe energetica
A4
Stato Immobile
In Costruzione
Grado
Signorile
Orientamento
Sud Ovest
Lati Liberi
2
Arredi
Non Arredato
Tipo Soggiorno
Soggiorno
Tipo Cucina
Angolo Cottura
Riscaldamento
Conta Calorie
Tipo Riscaldam.
Pompa di Calore
Tipo Impianto
Pavimento
Fonte Energetica
Elettrico
Acqua Calda
Centralizzata
Raffrescamento
Predisposizione
Infissi
PVC Doppio Vetro
Serramenti
Nuovo
Persiana
Tapparella Metallo
Pavim. Giorno
Parquet
Pavim. Notte
Parquet
Pavim. Cucina
Ceramica
Pavim. Bagno
Ceramica
Accesso Disabili
Nessuna Barriera
Accesso interno disabili
Pieno accesso
Isolamento
Presente
Isolamento termico
Cappotto esterno
Isolamento acustico
Isolamento completo
Destinato a residenti
Si
VMC
Si

Accessori: Antifurto, Aria Condizionata, Ascensore, Bagno Handicap, Cancello Elettrico, Doppi Vetri, Impianto Fotovoltaico, Impianto Satellitare, Parco Condominiale, Passaggio Automobilistico, Passaggio Pedonale, Porta Blindata, Rete Dati, Video Citofono, Zanzariere

Chiudi tutte
Planimetrie
Photo 1
Photo 2
Photo 3
Photo 4
Generali
Photo 1Photo 2
Photo 3Photo 4
Photo 5Photo 6
Photo 7Photo 8
Photo 9
Mappa
VIA FELICIA BARTOLOTTA , Modena (MO)
Agenzia di riferimento
Bagatti Studio Immobiliare
Bagatti Studio Immobiliare
Via Mario Vellani Marchi, 70
41124 Modena MO
Rif. Annuncio MO876B_D14
Vantaggi GruppoMore
Puoi acquistare questo immobile anche rivolgendoti ad un altro Agente Immobiliare del Gruppo MORE
Guarda l'elenco
Richiedi informazioni
Invia
Condividi su
Condividi su Facebook Condividi su Twitter Condividi su Linkedin Condividi su Whatsapp
Cookie preference