Maisonette in vendita a Maranello VIA GRIZZAGA
Italiano
English
269.300 €
97 m2
2 Camere
1 Bagni
1 Posti auto
A4

Maisonette in vendita a Maranello VIA GRIZZAGA

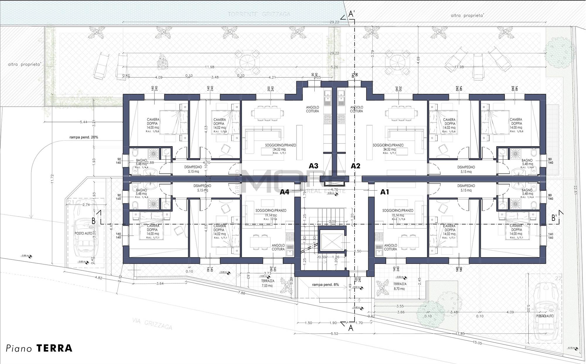
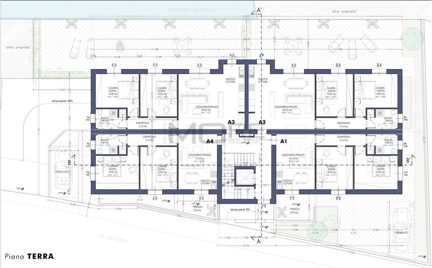
MO876E_A1. Via Grizzaga, Frazione Bell'Italia Di Maranello, in palazzina di prossima realizzazione in classe "A4" (Classe Energetica A4-NZEB) di due piani e 11 unità, vendesi maisonette "A1" di 97 mq. ubicata al piano terra e dotata di giardino, portico e posto auto interno.
Caratteristica peculiare dell’intervento è l’adozione di avanzate tecnologie impiantistiche d’avanguardia volte al massimo contenimento del consumo energetico nel pieno rispetto dell’ambiente, infatti tutte le unità immobiliari saranno edificate in classe “A4” (secondo la delibera della Regione Emilia Romagna dgr. 20 luglio 2015, n. 967).
Il capitolato prevede finiture di pregio tutte personalizzabili, pavimenti in ceramica grandi formati o parquet, rubinetterie e sanitari di design, riscaldamento a pavimento in pompa di calore, aria condizionata, impianto per il ricircolo dell'aria meccanizzato puntuale e pannelli fotovoltaici.
App.to così disposto: soggiorno/pranzo con angolo cottura, giardino con portico e posto auto, disimpegno notte, due camere da letto e bagno finestrato.
Possibilità di personalizzazione degli spazi e delle finiture interne.
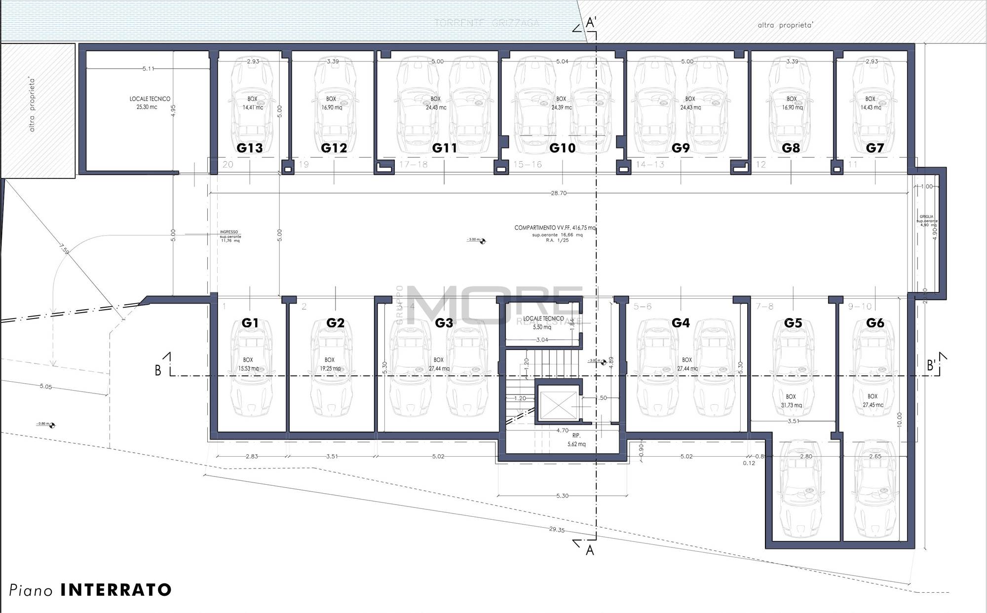
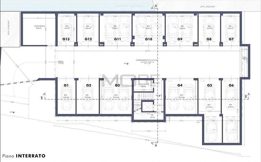
Possibilità di scelta tra diverse autorimesse al piano interrato a parte nel prezzo.
Prezzo:€ 269.300
Consegna giugno 2027.
Per informazioni e visite: 335-6444800 dott. Gollini Enrico, 340-7710085 dott. Corica Giuseppe, 335-6917982 Mastrodomenico Emidio, 335-6880908 geom. Fella Cristiano, 335-7853006 geom. Zara Costantino.
In alternativa ulteriori info sul ns sito GRUPPOMORE.IT digitando CODICE DI RIFERIMENTO o inviaci una mail a gestionecantierigruppomore@cataimm.it
Caratteristiche principali Vedi tutte
Codice
MO876E_A1
Città
Maranello
Categoria
Maisonette
Prezzo
269.300 €
Locali
3
Camere
2
Bagni
1
Mq
97
Posti auto
1
Mq Giardino
65,89
Terrazzi
1
mq Terrazzo
10,48
Piano
Terra
Classe energetica
A4
Stato Immobile
In Costruzione
Grado
Signorile
Orientamento
Sud Ovest
Lati Liberi
2
Giardino
Privato
Arredi
Non Arredato
Tipo Soggiorno
Soggiorno
Tipo Cucina
Angolo Cottura
Riscaldamento
Conta Calorie
Tipo Riscaldam.
Pompa di Calore
Tipo Impianto
Pavimento
Fonte Energetica
Fotovoltaico
Acqua Calda
Centralizzata a Pannelli
Raffrescamento
Split
Infissi
PVC Doppio Vetro
Serramenti
Nuovo
Persiana
Persiana Metallo
Accesso Disabili
Nessuna Barriera
Accesso interno disabili
Pieno accesso
Isolamento
Presente
Isolamento termico
Cappotto esterno
Isolamento acustico
Isolamento completo

Accessori: Aria Condizionata, Ascensore, Bagno Handicap, Cancello Elettrico, Doppi Vetri, Fibra Ottica, Impianto Fotovoltaico, Passaggio Automobilistico, Passaggio Pedonale, Porta Blindata, Rete Dati, Video Citofono, Zanzariere

Chiudi tutte
Planimetrie
Photo 1
Photo 2
Photo 3
Generali
Photo 1Photo 2
Photo 3Photo 4
Photo 5Photo 6
Photo 7Photo 8
Photo 9
Mappa
VIA GRIZZAGA , Maranello (MO)
Agenzia di riferimento
Edilmoreali
Edilmoreali
Via Emilia Est, 164, p. 1
41124 Modena MO
Rif. Annuncio MO876E_A1
Addetto alle vendite
Corica Dott. Giuseppe
Corica Dott. Giuseppe
Vantaggi GruppoMore
Puoi acquistare questo immobile anche rivolgendoti ad un altro Agente Immobiliare del Gruppo MORE
Guarda l'elenco
Richiedi informazioni
Invia
Condividi su
Condividi su Facebook Condividi su Twitter Condividi su Linkedin Condividi su Whatsapp
Cookie preference