Appartamento in vendita a Sassuolo (Centro), VIA GRAMSCI
Italiano
English
295.000 €
160 m2
3 Camere
2 Bagni
2 Box
1° piano - senza ascensore
C

Appartamento in vendita a Sassuolo (Centro), VIA GRAMSCI

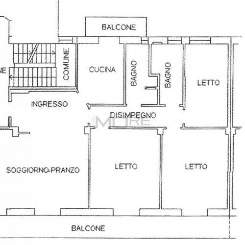
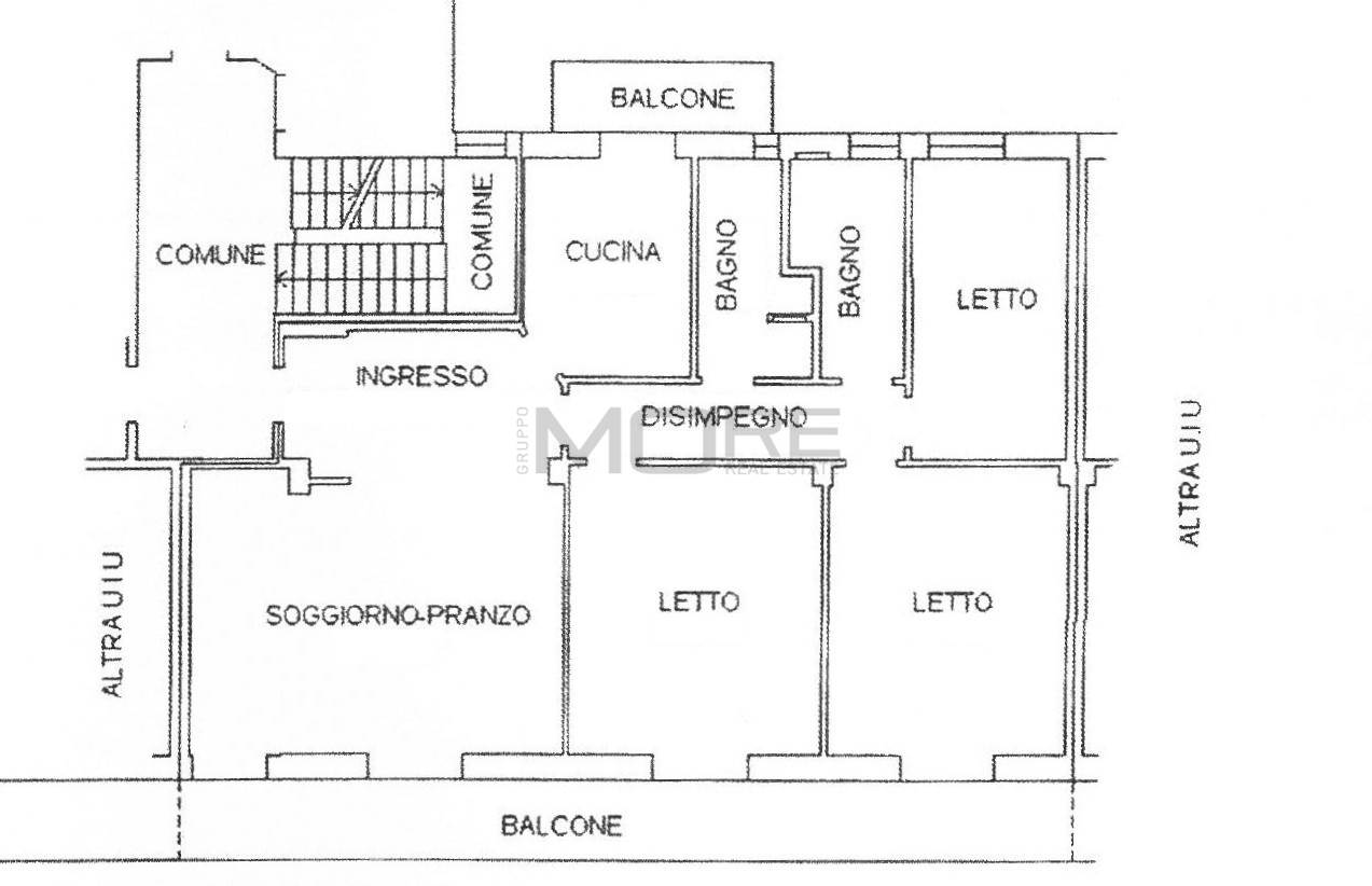
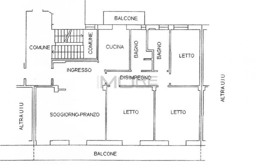
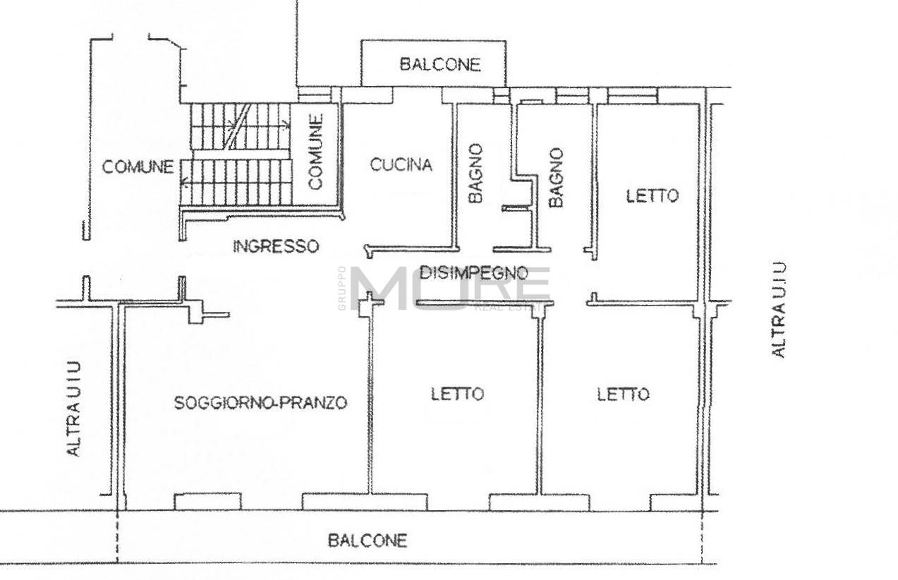
VB0607, Sassuolo, zona centro, Vendesi appartamento completamente ristrutturato posto al piano primo con ascensore composto da: ingresso, soggiorno/pranzo, cucina, dis. notte, tre camere da letto, due bagni e due balconi; oltre a soffitta al piano quarto sottotetto e garage al piano seminterrato. Classe energetica "C". Richiesta €. 295.000
Caratteristiche principali Vedi tutte
Codice
VB0608
Città
Sassuolo (Centro)
Categoria
Appartamento
Prezzo
295.000 €
Locali
6
Camere
3
Bagni
2
Mq
160
Box
2
Mq Box
43
Balconi
2
Mq Balcone
22
Piano
Primo
Classe energetica
C
Stato Immobile
Ottimo
Grado
Medio
Posizione
Centro
Orientamento
Sud Est
Lati Liberi
3
Giardino
No
Tipo Soggiorno
Soggiorno
Tipo Cucina
Abitabile
Riscaldamento
Conta Calorie
Tipo Riscaldam.
Caldaia
Tipo Impianto
Radiatori
Fonte Energetica
Metano
Acqua Calda
Centralizzata
Raffrescamento
Split
Infissi
PVC Doppio Vetro
Serramenti
Nuovo
Persiana
Tapparella PVC
Pavim. Giorno
Ceramica
Pavim. Notte
Ceramica
Pavim. Cucina
Ceramica
Pavim. Bagno
Ceramica

Accessori: Aria Condizionata, Doppi Vetri, Porta Blindata, Tapparelle Elettriche

Chiudi tutte
Planimetrie
Photo 1
Generali
Photo 1Photo 2
Photo 3Photo 4
Photo 5Photo 6
Photo 7Photo 8
Photo 9Photo 10
Photo 11Photo 12
Photo 13Photo 14
Mappa
VIA GRAMSCI , Sassuolo (MO)
Agenzia di riferimento
Bagatti Studio Immobiliare
Bagatti Studio Immobiliare
Via Mario Vellani Marchi, 70
41124 Modena MO
Rif. Annuncio VB0608
Vantaggi GruppoMore
Puoi acquistare questo immobile anche rivolgendoti ad un altro Agente Immobiliare del Gruppo MORE
Guarda l'elenco
Richiedi informazioni
Invia
Condividi su
Condividi su Facebook Condividi su Twitter Condividi su Linkedin Condividi su Whatsapp
Cookie preference