Attico in vendita a Modena (Amendola)
Italiano
English
890.000 €
267 m2
3 Camere
3 Bagni
A4

Attico in vendita a Modena (Amendola)

VB0637, ZONA F.LLI ROSSELLI, splendido attico di recente costruzione posto su due livelli dotato di doppio ingresso con ascensore così composto:
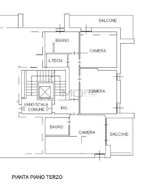
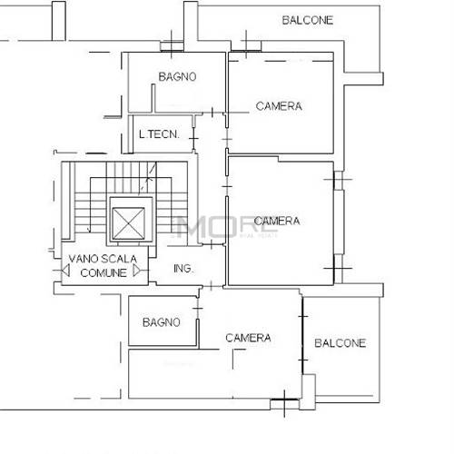
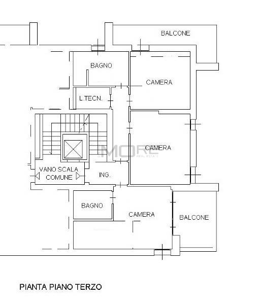
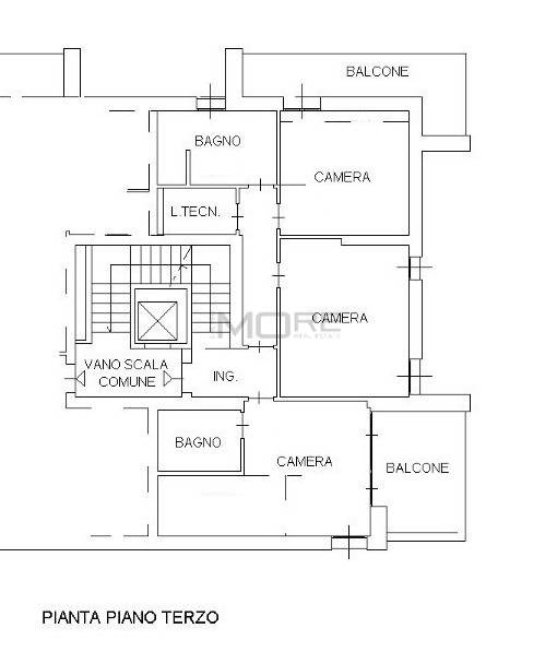
P. TERZO: zona notte, disimpegno, tre camere da letto matrimoniali (due dotate di balcone) due bagni, locale tecnico e due balconi.
P. QUARTO: zona giorno, disimpegno, ampio soggiorno/pranzo con accesso al terrazzo perimetrale su 4 lati di mq. 107,00, cucina abitabile, studio, bagno, ripostiglio e lavanderia.
Completano la proprietà un garage doppio e due posti auto scoperti al piano terra.
Ottime finiture, riscaldamento autonomo a pavimento con pompa di calore, impianto fotovoltaico, tapparelle motorizzate, aria condizionata, impianto di allarme. Nel prezzo è inclusa una pergola bioclimatica completa di cucina sul terrazzo, oltre all'arredo bagno e al box doccia.
Classe Energetica: A4
Richiesta €. 890.000
Caratteristiche principali Vedi tutte
Codice
VB0637
Città
Modena (Amendola )
Categoria
Attico
Prezzo
890.000 €
Locali
8
Camere
3
Bagni
3
Mq
267
Balconi
2
Mq Balcone
21
Terrazzi
1
mq Terrazzo
107
Classe energetica
A4
Stato Immobile
Ottimo
Grado
Signorile
Orientamento
Nord Ovest Sud Est
Lati Liberi
4
Giardino
Comune
Tipo Soggiorno
Soggiorno
Tipo Cucina
Abitabile
Riscaldamento
Autonomo
Tipo Riscaldam.
Pompa di Calore
Tipo Impianto
Pavimento
Fonte Energetica
Fotovoltaico
Acqua Calda
Autonoma
Raffrescamento
Split
Infissi
PVC Doppio Vetro
Serramenti
Ottimo
Persiana
Tapparella Metallo
Pavim. Giorno
Parquet
Pavim. Notte
Parquet
Pavim. Cucina
Parquet
Pavim. Bagno
Marmo
Accesso Disabili
Nessuna Barriera
Isolamento
Presente
Isolamento termico
Cappotto esterno
Isolamento acustico
Isolamento completo

Accessori: Antifurto, Aria Condizionata, Ascensore, Bagno Handicap, Cancello Elettrico, Doppi Vetri, Impianto Fotovoltaico, Lavanderia, Passaggio Automobilistico, Passaggio Pedonale, Porta Blindata, Ripostiglio, Tapparelle Elettriche, Video Citofono

Chiudi tutte
Planimetrie
Photo 1
Photo 2
Generali
Photo 1Photo 2
Photo 3Photo 4
Photo 5Photo 6
Photo 7Photo 8
Photo 9Photo 10
Photo 11Photo 12
Photo 13Photo 14
Photo 15Photo 16
Photo 17Photo 18
Photo 19Photo 20
Photo 21Photo 22
Photo 23Photo 24
Photo 25Photo 26
Photo 27Photo 28
Photo 29Photo 30
Video
Agenzia di riferimento
Bagatti Studio Immobiliare
Bagatti Studio Immobiliare
Via Mario Vellani Marchi, 70
41124 Modena MO
Rif. Annuncio VB0637
Vantaggi GruppoMore
Puoi acquistare questo immobile anche rivolgendoti ad un altro Agente Immobiliare del Gruppo MORE
Guarda l'elenco
Richiedi informazioni
Invia
Condividi su
Condividi su Facebook Condividi su Twitter Condividi su Linkedin Condividi su Whatsapp
Cookie preference