Appartamento in vendita a Maranello fondo val grizzaga
Italiano
English
410.000 €
168 m2
3 Camere
2 Bagni
2 Box
1° piano - senza ascensore
A4

Appartamento in vendita a Maranello fondo val grizzaga

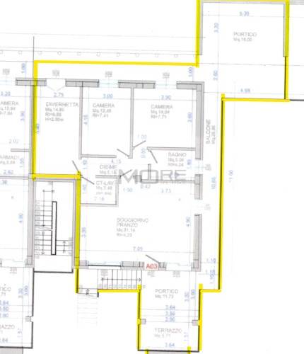
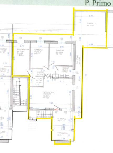
VC1872 Maranello In un contesto moderno ed elegante, immerso nel verde, vendiamo appartamento con ingresso indipendente al primo piano di una piccola palazzina senza spese condominiali. L’appartamento è composto da ingresso, soggiorno con cucina a vista , due camere, 2 bagni, terza camera accatastata a tavernetta e ampio terrazzo perimetrale con loggia e portico. Garage doppio al piano terra ( dove creare stanza ufficio/ studio con porta di ingresso separato dal garage)
Pannelli fotovoltaici, riscaldamento a pavimento autonomo, pompa di calore e frangisole. Finiture ad alta efficienza energetica, Classe En. A4.
Richiesta € 410.000
Caratteristiche principali Vedi tutte
Codice
VC1872
Città
Maranello
Categoria
Appartamento
Prezzo
410.000 €
Locali
4
Camere
3
Bagni
2
Mq
168
Box
2
Mq Box
30
Mq Giardino
60
Terrazzi
1
mq Terrazzo
15
Piano
Primo
Classe energetica
A4
Stato Immobile
Nuovo
Grado
Signorile
Lati Liberi
3
Giardino
Privato
Tipo Soggiorno
Soggiorno
Tipo Cucina
A Vista
Riscaldamento
Autonomo
Tipo Riscaldam.
Pompa di Calore
Tipo Impianto
Pavimento
Fonte Energetica
Elettrico
Acqua Calda
Autonoma

Accessori: Aria Condizionata, Doppi Vetri, Porta Blindata, Zanzariere

Chiudi tutte
Planimetrie
Photo 1
Photo 2
Photo 3
Generali
Photo 1Photo 2
Photo 3Photo 4
Photo 5Photo 6
Photo 7Photo 8
Photo 9
Mappa
fondo val grizzaga , Maranello (MO)
Agenzia di riferimento
Casafin sas
Casafin sas
Via Valdrighi, 101
41124 Modena MO
Rif. Annuncio VC1872
Vantaggi GruppoMore
Puoi acquistare questo immobile anche rivolgendoti ad un altro Agente Immobiliare del Gruppo MORE
Guarda l'elenco
Richiedi informazioni
Invia
Condividi su
Condividi su Facebook Condividi su Twitter Condividi su Linkedin Condividi su Whatsapp
Cookie preference