Appartamento in vendita a Modena (Madonnina)
Italiano
English
507.000 €
163 m2
3 Camere
2 Bagni
1 Box / 1 Posti auto
1° piano - con ascensore
A

Appartamento in vendita a Modena (Madonnina)

🏡 Nuovo appartamento con 3 camere – Piccola palazzina esclusiva

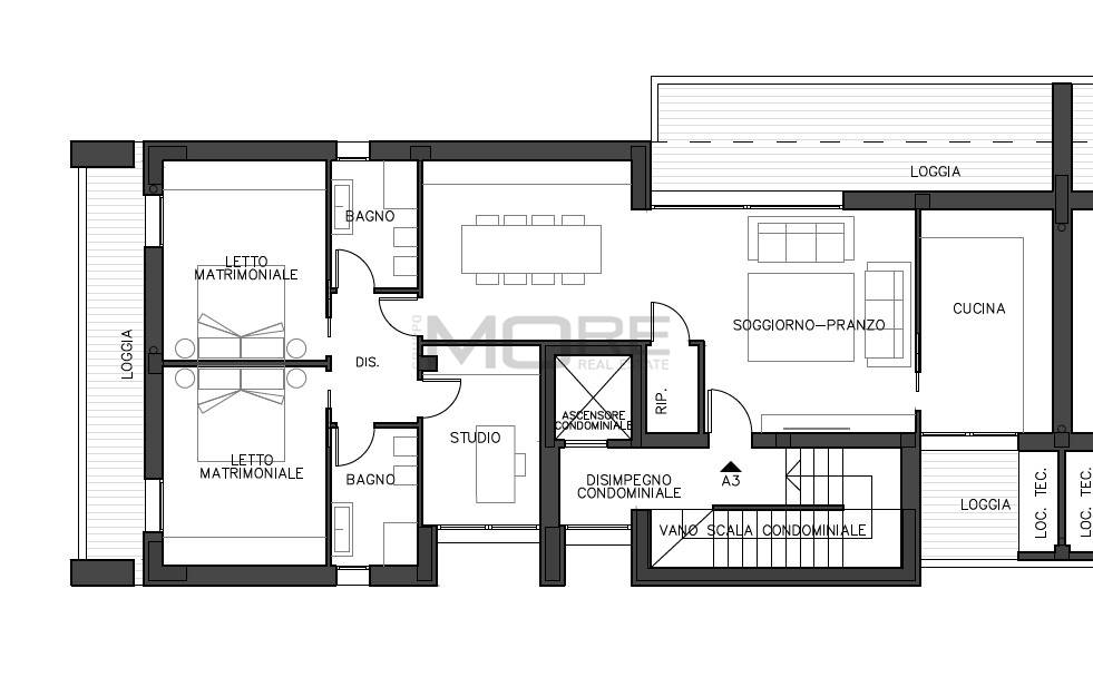
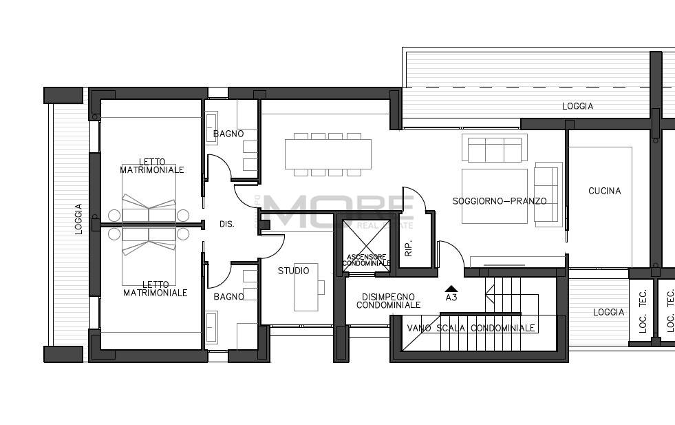
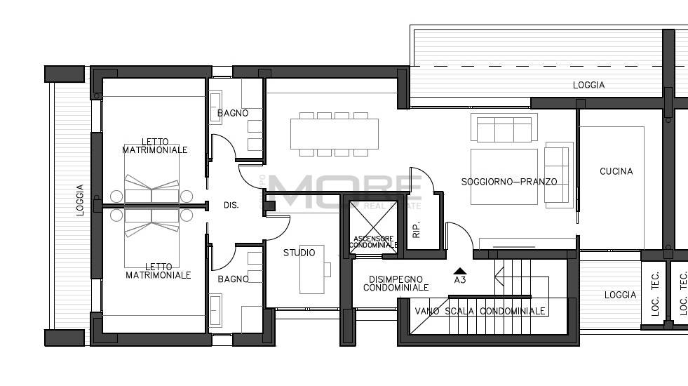
In piccola palazzina di sole 6 unità, proponiamo in vendita appartamento al 1° piano con ingresso indipendente e ampio soggiorno con cucina abitabile.

✨ Caratteristiche principali:

Ampio soggiorno con cucina abitabile,

Disimpegno notte con 3 camere e 2 bagni,

Ripostiglio,

Possibilità di acquistare garage e posto auto.

🌿 Vantaggi della palazzina:

Design moderno ed elegante che valorizza l’intera area,

Impianto di riscaldamento e raffrescamento autonomo con pompa di calore e supporto fotovoltaico,

Intervento Sisma Bonus Acquisti.

💰 Prezzo: € 507.000 + garage e posto auto

Soluzione ideale per chi cerca spazi generosi, comfort e tecnologia green, in un contesto riservato e di pregio.
Caratteristiche principali Vedi tutte
Codice
VCUC3
Città
Modena (Madonnina)
Categoria
Appartamento
Prezzo
507.000 €
Locali
4
Camere
3
Bagni
2
Mq
163
Box
1
Posti auto
1
Balconi
1
Mq Balcone
7
Terrazzi
2
mq Terrazzo
31,5
Piano
Primo
Classe energetica
A
Stato Immobile
In Costruzione
Grado
Medio
Tipo Soggiorno
Doppio
Tipo Cucina
Abitabile
Riscaldamento
Autonomo
Tipo Riscaldam.
Pompa di Calore
Tipo Impianto
Pavimento
Fonte Energetica
Fotovoltaico
Acqua Calda
Autonoma
Raffrescamento
Pavimento
Infissi
PVC Doppio Vetro
Serramenti
Nuovo

Accessori: Aria Condizionata, Ascensore, Cancello Elettrico, Doppi Vetri, Pannelli Solari, Porta Blindata, Video Citofono, Zanzariere

Chiudi tutte
Generali
Photo 1Photo 2
Photo 3Photo 4
Photo 5Photo 6
Agenzia di riferimento
Casafin sas
Casafin sas
Via Valdrighi, 101
41124 Modena MO
Rif. Annuncio VCUC3
Vantaggi GruppoMore
Puoi acquistare questo immobile anche rivolgendoti ad un altro Agente Immobiliare del Gruppo MORE
Guarda l'elenco
Richiedi informazioni
Invia
Condividi su
Condividi su Facebook Condividi su Twitter Condividi su Linkedin Condividi su Whatsapp
Cookie preference