Porzione di Casa in vendita a Formigine (Casinalbo)
Italiano
English
435.000 €
385 m2
3 Camere
2 Bagni
1 Box
In fase di valutazione

Porzione di Casa in vendita a Formigine (Casinalbo)

VE1866 -Nostra Esclusiva. In tranquillo e silenzioso quartiere residenziale di Casinalbo (in una strada chiusa al traffico), proponiamo in vendita una villa abbinata risalente agli anni '70, che si sviluppa su una superficie complessiva di 385 mq commerciali, circondata da un ampio giardino privato di 355 mq con portico.


Dettagli principali dell'immobile:
• Giardino su tre lati con ingresso pedonale e cancello carrabile
automatico
• Ampio portico esterno
• Garage, cantina e taverna al piano terra
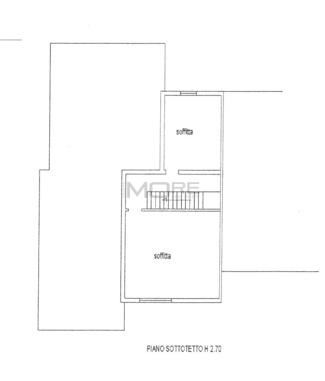
• Mansarda abitabile, soffitta e riscaldamento autonomo con aria condizionata


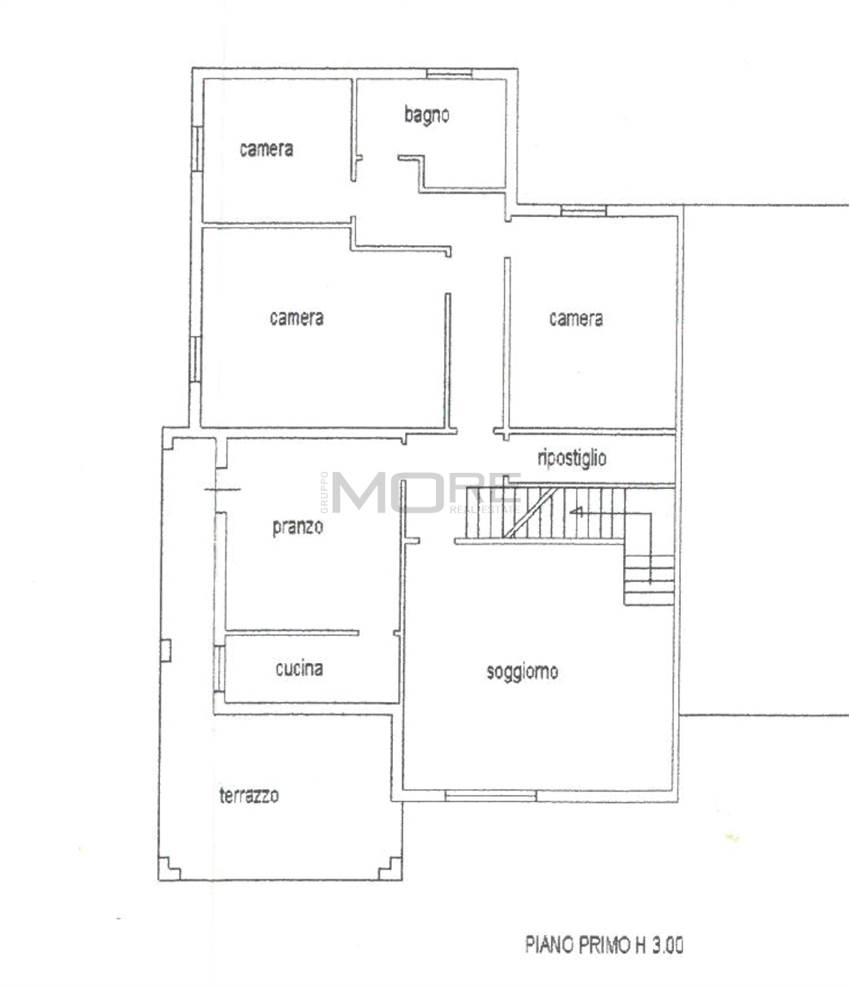
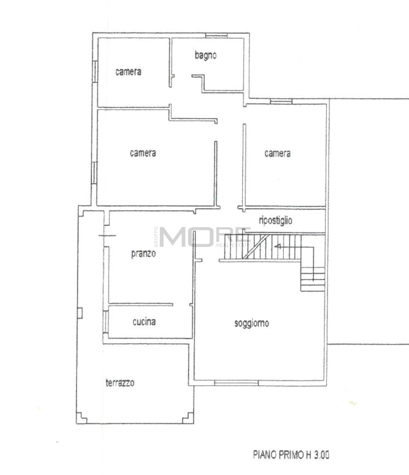
Distribuzione interna:
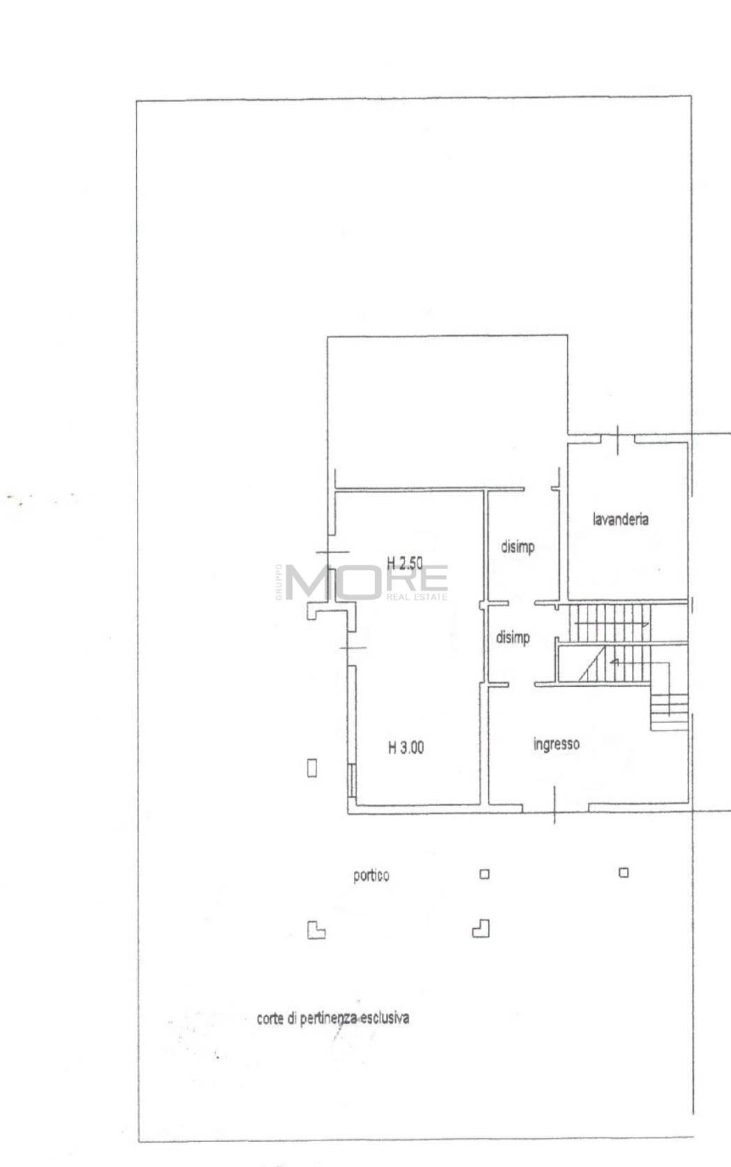
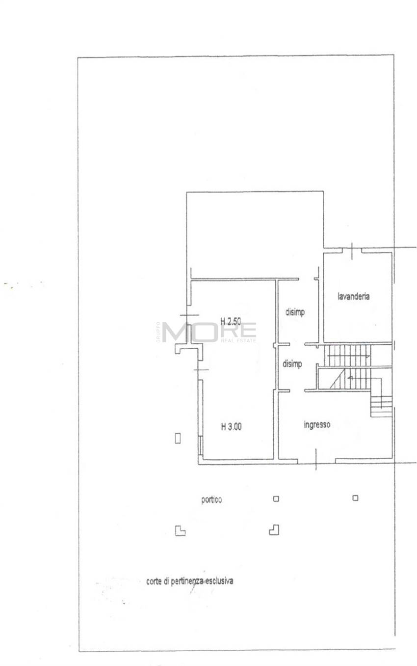
* Piano terra: cortile privato con ingresso, spaziosa taverna, lavanderia, garage, e accesso alla cantina nel piano seminterrato
* Primo piano: soggiorno luminoso, sala da pranzo con cucinotto, due camere matrimoniali, una camera singola e
* bagno
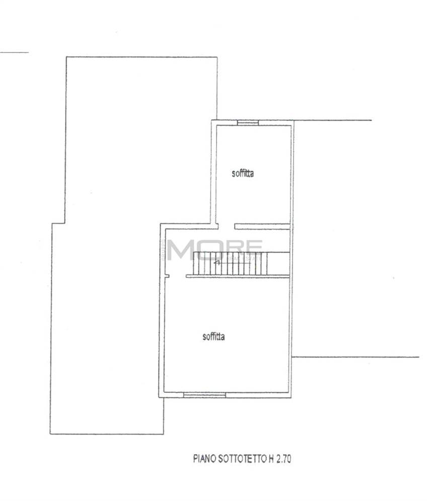
* Secondo piano: soffitta totalmente abitabile e ulteriore solaio/deposito

L'immobile offre la possibilità di una ristrutturazione per renderlo bifamiliare, creando un appartamento indipendente
al piano terra.
Caratteristiche principali Vedi tutte
Codice
VE1866-1
Città
Formigine (Casinalbo)
Categoria
Porzione di Casa
Prezzo
435.000 €
Locali
11
Camere
3
Bagni
2
Mq
385
Box
1
Mq Box
32
Mq Giardino
350
Terrazzi
1
mq Terrazzo
22
Piano
Terra
Classe energetica
In fase di valutazione
Stato Immobile
Abitabile
Grado
Medio
Posizione
Periferia
Panorama
Vista Aperta
Lati Liberi
3
Giardino
Privato
Arredi
Possibilità
Tipo Soggiorno
Salone
Tipo Cucina
Cucinotto
Riscaldamento
Autonomo
Tipo Riscaldam.
Caldaia
Tipo Impianto
Radiatori
Fonte Energetica
Gas
Acqua Calda
Autonoma
Raffrescamento
Split
Infissi
Legno Doppio Vetro
Serramenti
Discreto
Persiana
Tapparella Legno

Accessori: Aria Condizionata, Armadio a Muro, Lavanderia, Passaggio Automobilistico, Passaggio Pedonale, Porta Blindata, Ripostiglio, Tavolini Esterni, Zanzariere

Chiudi tutte
Planimetrie
Photo 1
Photo 2
Photo 3
Photo 4
Generali
Photo 1Photo 2
Photo 3Photo 4
Photo 5Photo 6
Photo 7Photo 8
Photo 9Photo 10
Photo 11Photo 12
Photo 13Photo 14
Photo 15Photo 16
Photo 17Photo 18
Photo 19
Agenzia di riferimento
Edilmoreali
Edilmoreali
Via Emilia Est, 164, p. 1
41124 Modena MO
Rif. Annuncio VE1866-1
Addetto alle vendite
Corica  Geom. Maurizio
Corica Geom. Maurizio
Vantaggi GruppoMore
Puoi acquistare questo immobile anche rivolgendoti ad un altro Agente Immobiliare del Gruppo MORE
Guarda l'elenco
Richiedi informazioni
Invia
Condividi su
Condividi su Facebook Condividi su Twitter Condividi su Linkedin Condividi su Whatsapp
Cookie preference