Laboratorio in vendita a Modena (Prossimità centro)
Italiano
English
694.080 €
512 m2
7 Posti auto
G

Laboratorio in vendita a Modena (Prossimità centro)

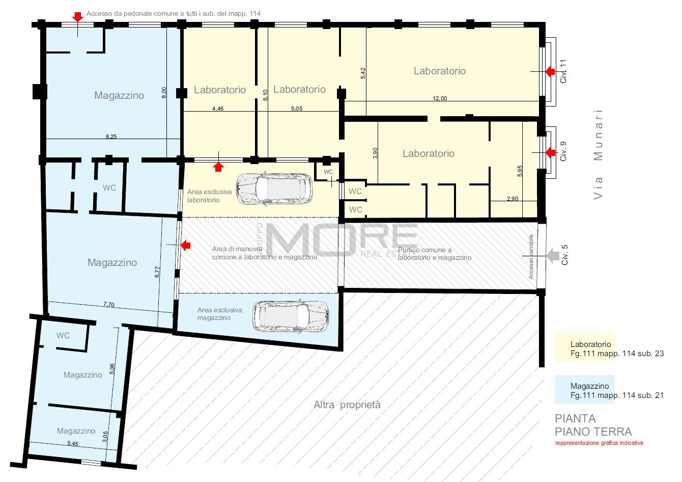
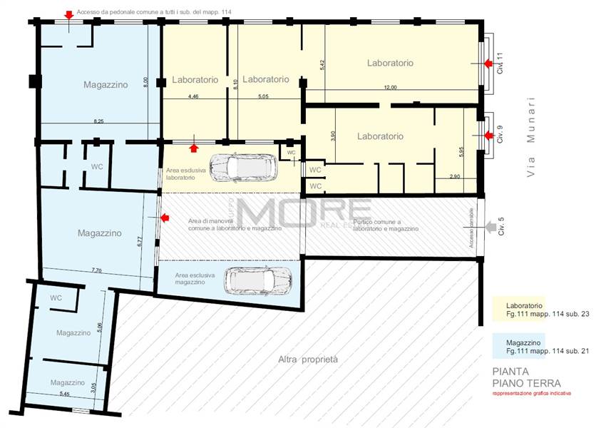
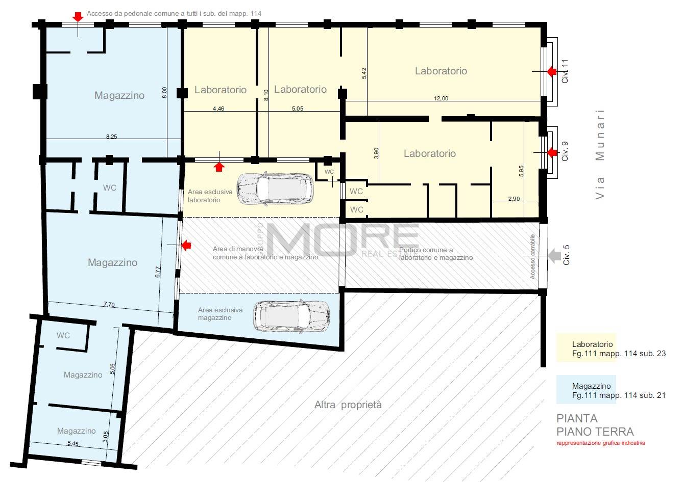
VE1915. Via Munari, strettissime ad.ze Centro Storico e Stazione dei treni vendesi uniti o separatamente magazzino di 245 mq. e laboratorio di 266 mq. entrambi ubicati al piano terra.
Immobili da ristrutturare con altezza di 3.80 mt cadauno collegati da ampio portico e area comune di manovra.
Prezzi:
- Magazzino 294.480 €
- Laboratorio 399.600 €
Possibilità di acquistare separatamente i due ambienti.
Caratteristiche principali Vedi tutte
Codice
VE1915
Città
Modena (Prossimità centro)
Categoria
Laboratorio
Prezzo
694.080 €
Locali
8
Mq
512
Posti auto
7
Piano
Terra
Classe energetica
G
Stato Immobile
Da Ristrutturare
Grado
Economico
Posizione
Centro
Orientamento
Nord Ovest Sud Est
Lati Liberi
2
Riscaldamento
Autonomo
Destinazione
Artigianale
Accesso Disabili
Nessuna Barriera
Accesso interno disabili
Pieno accesso

Accessori: Parco Condominiale, Passaggio Automobilistico, Passaggio Pedonale, Ripostiglio

Chiudi tutte
Planimetrie
Photo 1
Generali
Photo 1Photo 2
Photo 3Photo 4
Agenzia di riferimento
Edilmoreali
Edilmoreali
Via Emilia Est, 164, p. 1
41124 Modena MO
Rif. Annuncio VE1915
Addetto alle vendite
Corica Dott. Giuseppe
Corica Dott. Giuseppe
Vantaggi GruppoMore
Puoi acquistare questo immobile anche rivolgendoti ad un altro Agente Immobiliare del Gruppo MORE
Guarda l'elenco
Richiedi informazioni
Invia
Condividi su
Condividi su Facebook Condividi su Twitter Condividi su Linkedin Condividi su Whatsapp
Cookie preference