3 locali in vendita a San Prospero (San Lorenzo della Pioppa), Zona San Lorenzo
Italiano
English
135.000 €
90 m2
2 Camere
1 Bagni
1 Box
1° piano - con ascensore
In fase di valutazione

3 locali in vendita a San Prospero (San Lorenzo della Pioppa), Zona San Lorenzo

San Prospero Loc. San Lorenzo
In palazzina di nuova costruzione di 12 unità proponiamo in vendita 5 appartamenti, 2 al primo piano, uno al secondo piano e due al terzo.
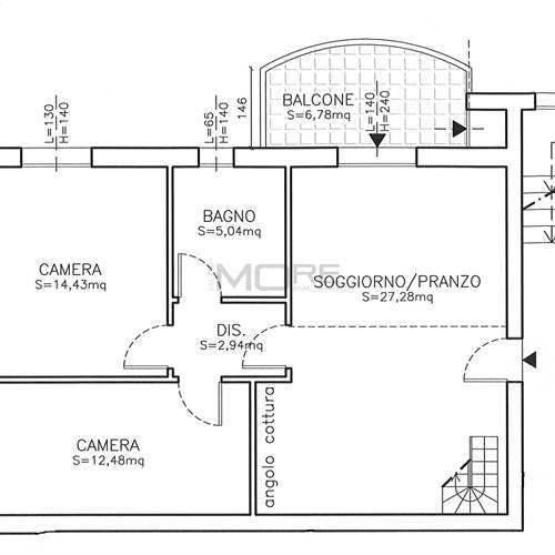
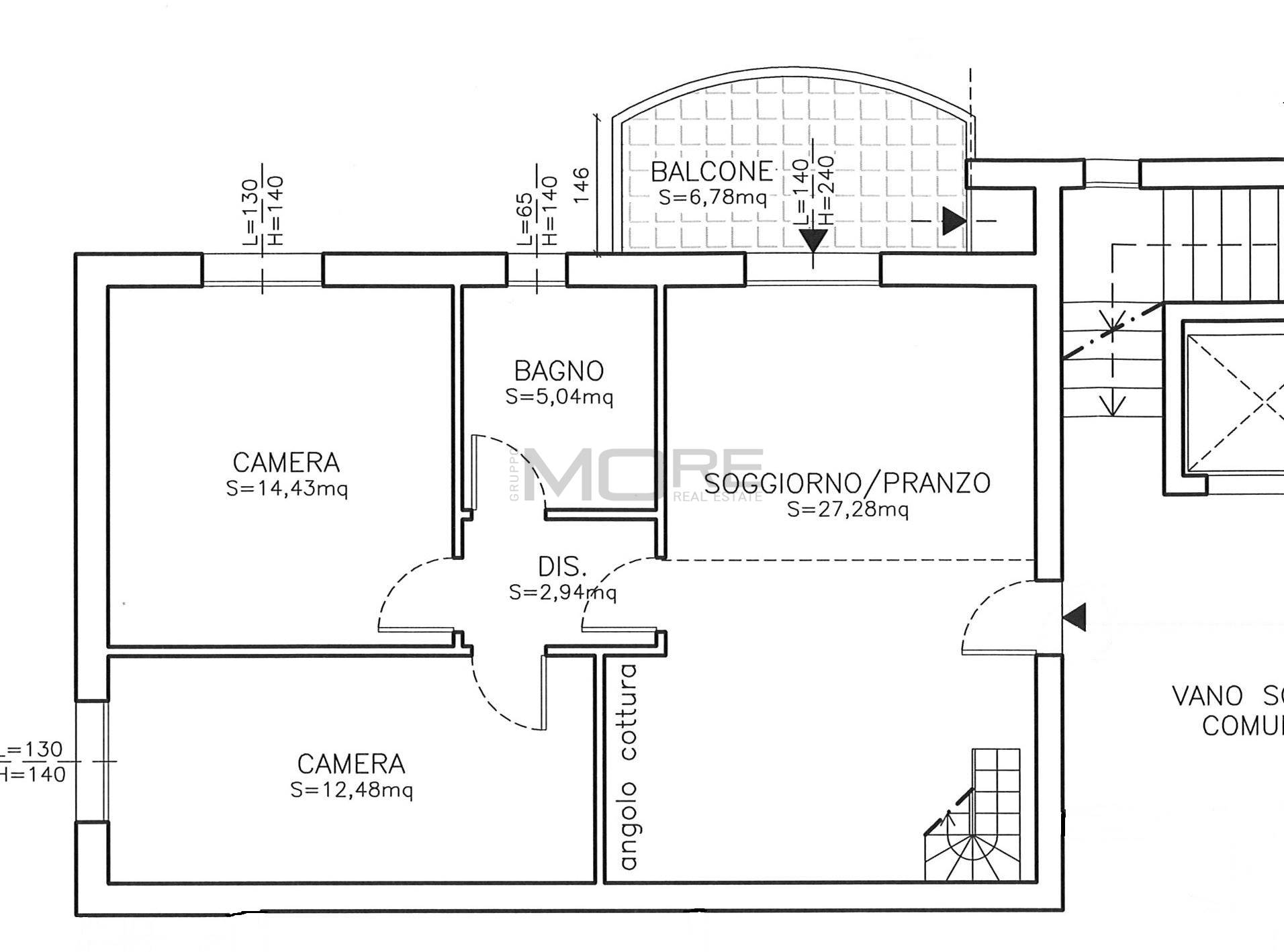
VP1637-P3/2 Lato sud Soggiorno con angolo cottura, due camere, bagno, balcone + soppalco. Ampio garage. Classe: in fase di valutazione.
Richiesta euro 135.000 + IVA
Caratteristiche principali Vedi tutte
Codice
VP1637-P3/2
Città
San Prospero (San Lorenzo della Pioppa)
Categoria
3 locali
Prezzo
135.000 €
Locali
3
Camere
2
Bagni
1
Mq
90
Box
1
Balconi
1
Piano
Primo
Classe energetica
In fase di valutazione
Stato Immobile
Nuovo
Grado
Medio
Tipo Soggiorno
Soggiorno
Tipo Cucina
Angolo Cottura
Riscaldamento
Autonomo
Tipo Impianto
Radiatori
Pavim. Giorno
Ceramica
Pavim. Notte
Ceramica
Pavim. Cucina
Ceramica
Pavim. Bagno
Ceramica

Accessori: Aria Condizionata, Ascensore, Doppi Vetri, Porta Blindata

Chiudi tutte
Generali
Photo 1Photo 2
Photo 3Photo 4
Photo 5Photo 6
Photo 7Photo 8
Photo 9
Mappa
Zona San Lorenzo , San Prospero (MO)
Agenzia di riferimento
Studio I Portici srl
Studio I Portici srl
Viale Corassori, 72
41124 Modena MO
Rif. Annuncio VP1637-P3/2
Vantaggi GruppoMore
Puoi acquistare questo immobile anche rivolgendoti ad un altro Agente Immobiliare del Gruppo MORE
Guarda l'elenco
Richiedi informazioni
Invia
Condividi su
Condividi su Facebook Condividi su Twitter Condividi su Linkedin Condividi su Whatsapp
Cookie preference