Villetta schiera in vendita a Modena (Crocetta), Via Mar Tirreno
Italiano
English
597.000 €
192,58 m2
4 Camere
2 Box
A4

Villetta schiera in vendita a Modena (Crocetta), Via Mar Tirreno

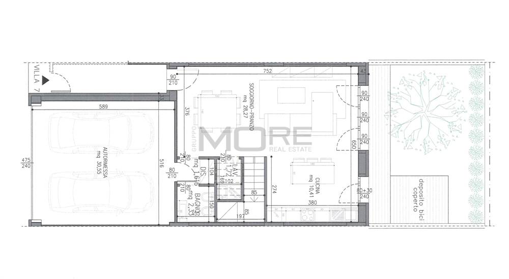
NOSTRA ESCLUSIVA Intervento residenziale di prossima realizzazione situato a pochi passi centro storico di Modena composto 8 VILLETTE, tutte disposte su piano terra e primo piano, realizzate in classe A4.
Villa 7
P.T. Doppio garage, ingresso privato loggiato, ampia zona giorno con cucina separabile, antibagno, bagno, ripostiglio e giardino privato
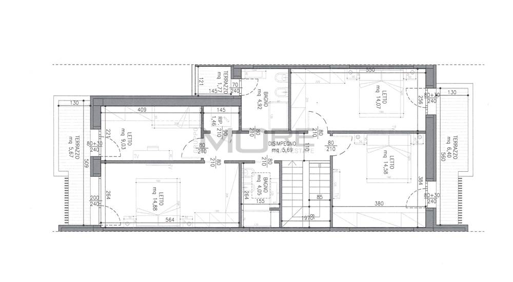
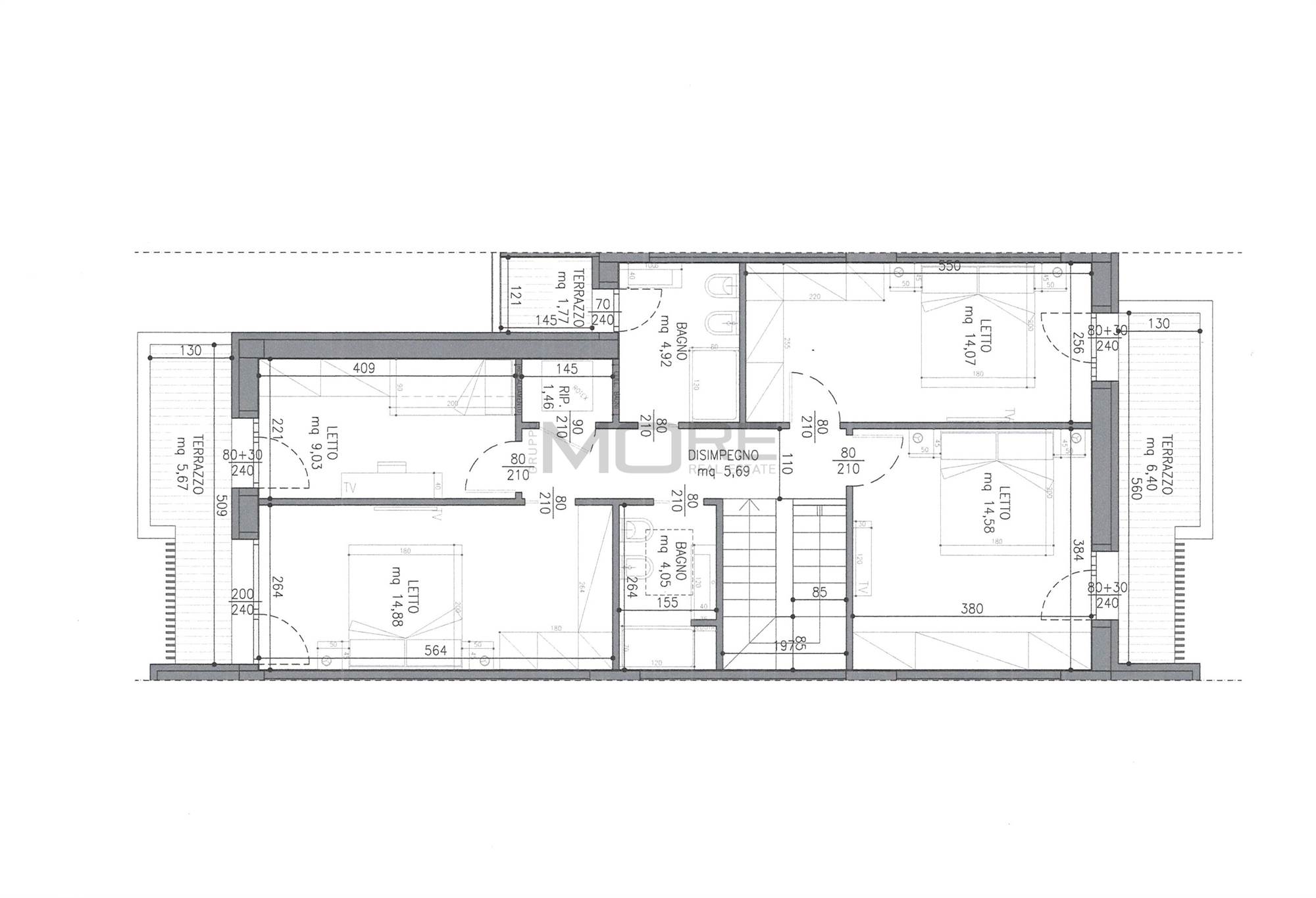
P.1. 4 camere, due bagni finestrati, due terrazzi, ripostiglio, locale tecnico.
Possibilità di definire la distribuzione interna e oltre che le finiture di capitolato di altissima qualità.
NOSTRA ESCLUSIVA Intervento residenziale di prossima realizzazione situato a pochi passi centro storico di Modena composto 8 VILLETTE, tutte disposte su piano terra e primo piano, realizzate in classe A4.
VILLA 4
P.T. Doppio garage, ingresso privato loggiato, ampia zona giorno con cucina separabile, antibagno, bagno, ripostiglio e giardino privato
P.1. 4 camere, due bagni finestrati, due terrazzi, ripostiglio, locale tecnico.
Possibilità di definire la distribuzione interna e oltre che le finiture di capitolato di altissima qualità.
NOSTRA ESCLUSIVA Intervento residenziale di prossima realizzazione situato a pochi passi centro storico di Modena composto 8 VILLETTE, tutte disposte su piano terra e primo piano, realizzate in classe A4.
VILLA 3
P.T. Doppio garage, ingresso privato loggiato, ampia zona giorno con cucina separabile, antibagno, bagno, ripostiglio e giardino privato
P.1. 4 camere, due bagni finestrati, due terrazzi, ripostiglio, locale tecnico.
Possibilità di definire la distribuzione interna e oltre che le finiture di capitolato di altissima qualità.
Richiesta euro 597.000, possibili sgravi fiscali per ogni unità fino a euro 48.000. Consegna: DICEMBRE 2026
Per informazioni e prenotazioni STUDIO I PORTICI tel. 0592929563





Caratteristiche principali Vedi tutte
Codice
VP2739-7
Città
Modena (Crocetta)
Categoria
Villetta schiera
Prezzo
597.000 €
Locali
5
Camere
4
Mq
192,58
Box
2
Mq Giardino
40,55
Terrazzi
2
Piano
Terra
Classe energetica
A4
Stato Immobile
Prossima Realizzazione
Grado
Signorile
Tipo Soggiorno
Soggiorno
Tipo Cucina
Angolo Cottura
Riscaldamento
Autonomo
Tipo Riscaldam.
Pompa di Calore
Tipo Impianto
Pavimento
Raffrescamento
Pavimento
Infissi
Legno Triplo Vetro
Serramenti
Personalizzato
Persiana
Tapparella Metallo
Pavim. Giorno
Personalizzato
Pavim. Notte
Personalizzato
Pavim. Cucina
Personalizzato
Pavim. Bagno
Personalizzato

Accessori: Aria Condizionata, Cancello Elettrico, Doppi Vetri, Impianto Domotica, Impianto Fotovoltaico, Impianto Satellitare, Porta Blindata, Tapparelle Elettriche, Video Citofono, Zanzariere

Chiudi tutte
Generali
Photo 1Photo 2
Photo 3Photo 4
Photo 5Photo 6
Photo 7Photo 8
Photo 9Photo 10
Photo 11Photo 12
Photo 13Photo 14
Mappa
Via Mar Tirreno , Modena (MO)
Agenzia di riferimento
Studio I Portici srl
Studio I Portici srl
Viale Corassori, 72
41124 Modena MO
Rif. Annuncio VP2739-7
Vantaggi GruppoMore
Puoi acquistare questo immobile anche rivolgendoti ad un altro Agente Immobiliare del Gruppo MORE
Guarda l'elenco
Richiedi informazioni
Invia
Condividi su
Condividi su Facebook Condividi su Twitter Condividi su Linkedin Condividi su Whatsapp
Cookie preference