Villetta schiera in vendita a Modena (Sacca), Zona Sacca
VP2769-4 Modena Zona Sacca
Nuovo Intervento Immobiliare, costituito da n.6 villette abbinate in posizione veramente strategica, a pochi passi centro storico. La sfida importante in questa iniziativa immobiliare è quella di innovare, puntando al contempo a elevare gli standard di confort abitativo, vivibilità, bellezza, e sostenibilità ambientale. Classe A4.
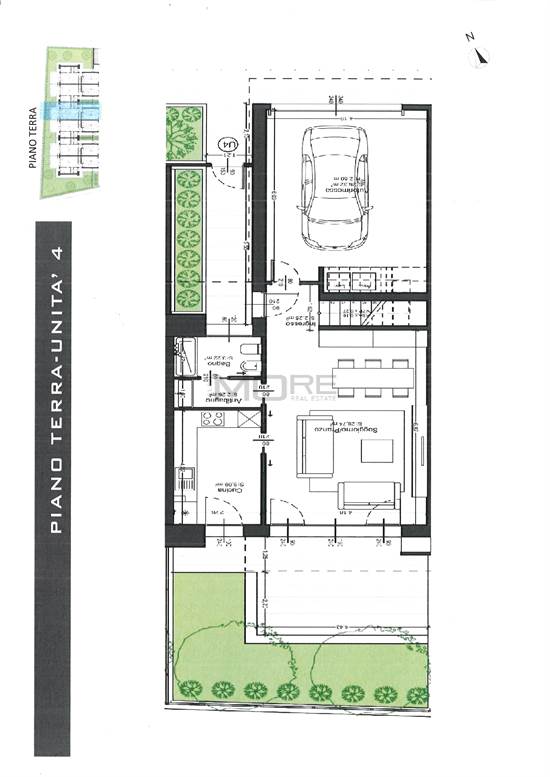
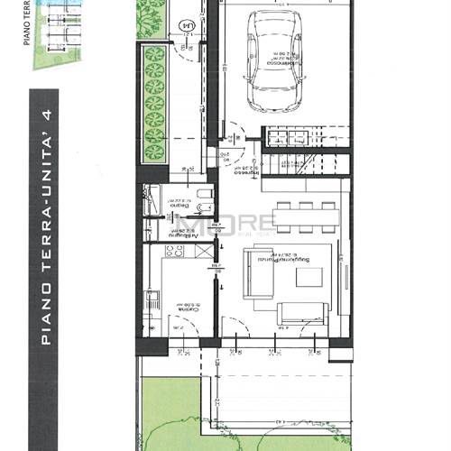
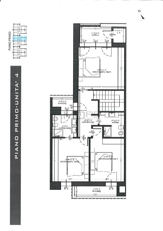
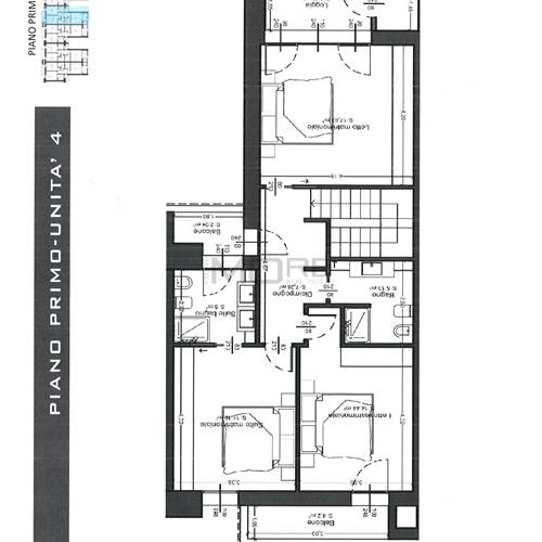
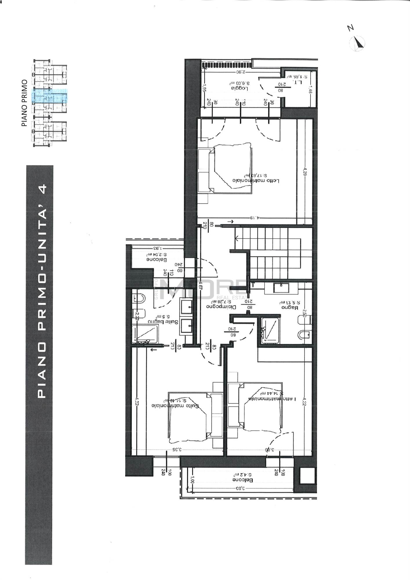
VILLA TIP. 4
P.T. Garage doppio, giardino esclusivo e posto auto. Ingresso privato salone, cucina ( o open space), antibagno, bagno e lavanderia;
P.1. Tre camere matrimoniali, due bagni, ripostiglio, due balconi, una loggia, locale tecnico.
Capitolato di altissima qualità, impianto fotovoltaico 6kw.
Consegna entro il 31/10/2027 Richiesta euro 593.722,62
Categoria
Villetta schiera
Stato Immobile
Prossima Realizzazione
Accessori: Aria Condizionata, Doppi Vetri, Impianto Fotovoltaico, Porta Blindata, Video Citofono
Chiudi tutte
Mappa
Zona Sacca , Modena (MO)