Appartamento in vendita a Modena (Buon Pastore), Adiacenze Medaglie d' Oro
Italiano
English
400.000 €
225 m2
3 Camere
3 Bagni
1 Box / 1 Posti auto
In fase di valutazione

Appartamento in vendita a Modena (Buon Pastore), Adiacenze Medaglie d' Oro

VP2798 Modena Zona Medaglie D' Oro
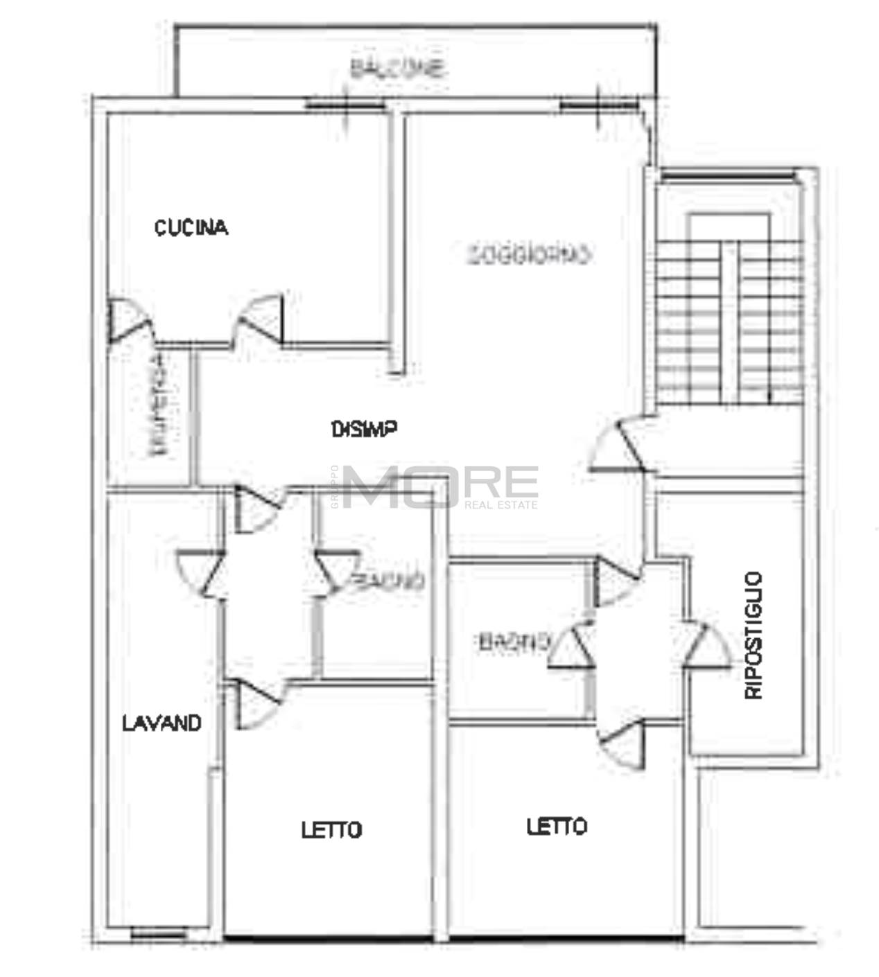
Appartamento di ampia metratura con ingresso indipendente disposto su tre livelli.
P.T. Ingresso, ampia taverna, studio, cucinotto, bagno. Giardino, garage e posto auto.
P.2. Sala, cucina abitabile, balcone, due camere, bagno, stanza armadi, lavanderia.
P.Sottotetto Camera, bagno, armadio-ripostiglio.
Classe: in fase di valutazione. Richiesta euro 400.000,00
Caratteristiche principali Vedi tutte
Codice
VP2798
Città
Modena (Buon Pastore)
Categoria
Appartamento
Prezzo
400.000 €
Locali
8
Camere
3
Bagni
3
Mq
225
Box
1
Posti auto
1
Mq Giardino
50
Balconi
1
Classe energetica
In fase di valutazione
Stato Immobile
Buono
Grado
Signorile
Tipo Soggiorno
Sala da Pranzo
Tipo Cucina
Abitabile
Riscaldamento
Autonomo
Pavim. Giorno
Parquet
Pavim. Notte
Parquet
Pavim. Cucina
Ceramica
Pavim. Bagno
Ceramica

Accessori: Aria Condizionata, Doppi Vetri, Lavanderia, Porta Blindata

Chiudi tutte
Planimetrie
Photo 1
Photo 2
Photo 3
Generali
Photo 1Photo 2
Photo 3Photo 4
Photo 5Photo 6
Photo 7Photo 8
Photo 9Photo 10
Photo 11Photo 12
Photo 13Photo 14
Photo 15Photo 16
Photo 17Photo 18
Photo 19Photo 20
Photo 21Photo 22
Photo 23Photo 24
Photo 25Photo 26
Photo 27Photo 28
Photo 29Photo 30
Photo 31Photo 32
Mappa
Adiacenze Medaglie d' Oro , Modena (MO)
Agenzia di riferimento
Studio I Portici srl
Studio I Portici srl
Viale Corassori, 72
41124 Modena MO
Rif. Annuncio VP2798
Vantaggi GruppoMore
Puoi acquistare questo immobile anche rivolgendoti ad un altro Agente Immobiliare del Gruppo MORE
Guarda l'elenco
Richiedi informazioni
Invia
Condividi su
Condividi su Facebook Condividi su Twitter Condividi su Linkedin Condividi su Whatsapp
Cookie preference