Attico in vendita a Modena (Torrazzi)
Italiano
English
480.000 €
165 m2
1 Box
3° piano - con ascensore
A

Attico in vendita a Modena (Torrazzi)

VP2809 G11 Modena Torrazzi
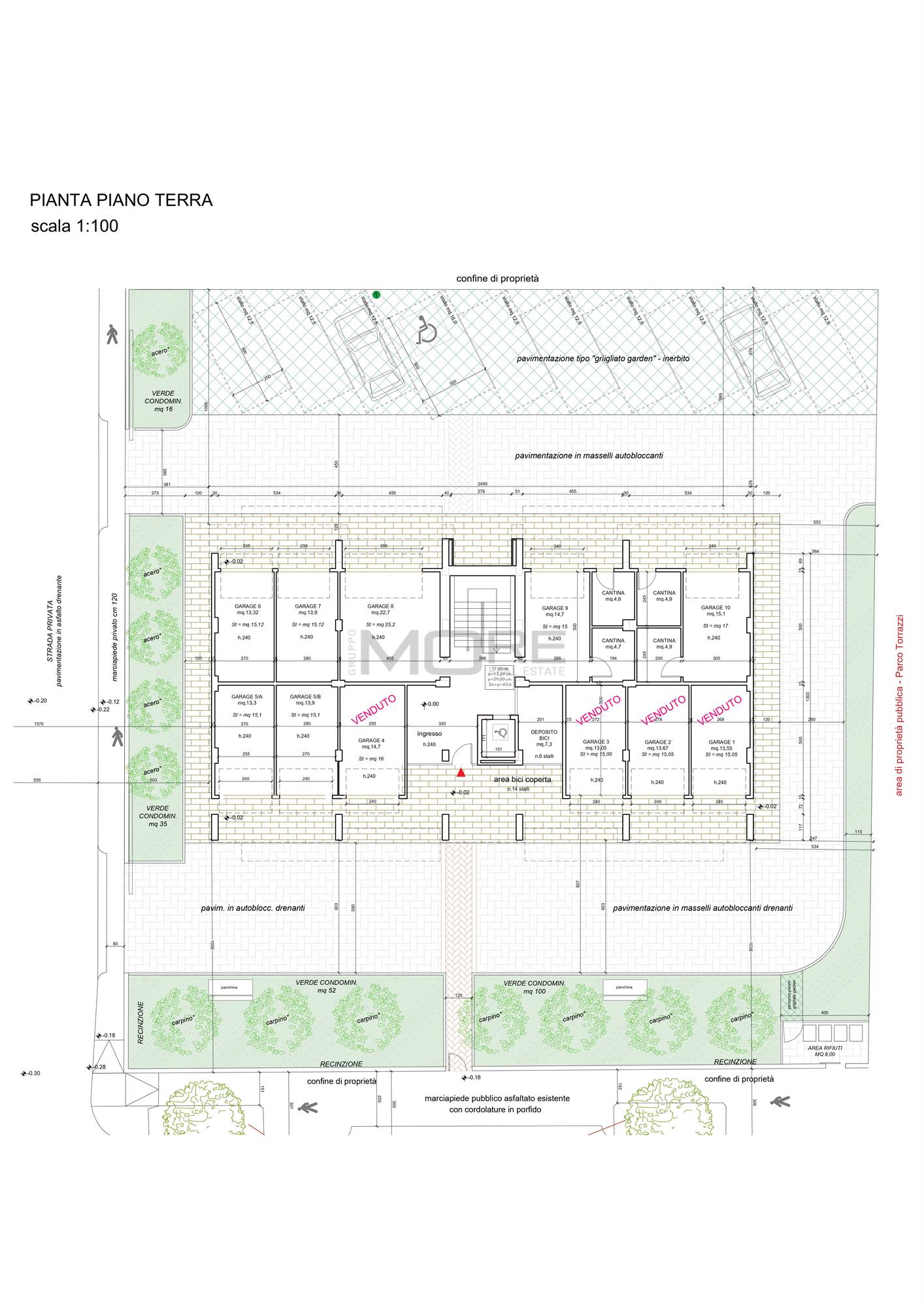
Nuovo intervento immobiliare di pregio nei pressi del Parco dei Torrazzi costituito da due palazzine antisismiche in classe A per un totale di 15 unità immobiliari di varia metratura.
Ogni unità disporrà di garage privato e avrà le caratteristiche per poter usufruire dei benefici fiscali "SISMABONUS Acquisti", previsti dalla normativa vigente. Consegna dicembre 2026

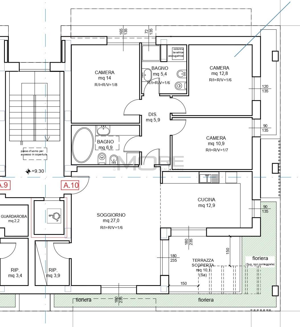
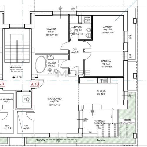
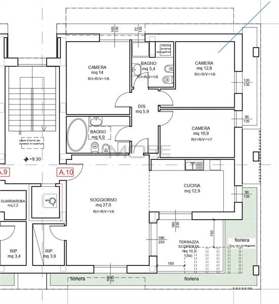
Tipologia G11 -Piano Terzo -
Attico composto da soggiorno, cucina abitabile aperta sul soggiorno, terrazzo, tre camere, due bagni. Garage al piano terra. Richiesta euro 480.000.000
Possibilità di acquisto posto auto in cortile euro 7.000 e/o cantina euro 5.000
Caratteristiche principali Vedi tutte
Codice
VP2809 G11
Città
Modena (Torrazzi)
Categoria
Attico
Prezzo
480.000 €
Locali
4
Mq
165
Box
1
Piano
Terzo
Classe energetica
A
Stato Immobile
In Costruzione
Grado
Signorile
Tipo Soggiorno
Soggiorno
Tipo Cucina
Angolo Cottura
Riscaldamento
Autonomo
Tipo Riscaldam.
Pompa di Calore
Tipo Impianto
Pavimento
Fonte Energetica
Fotovoltaico
Acqua Calda
Autonoma
Pavim. Giorno
Personalizzato
Pavim. Notte
Personalizzato
Pavim. Cucina
Personalizzato
Pavim. Bagno
Personalizzato

Accessori: Ascensore, Cancello Elettrico, Impianto Fotovoltaico, Porta Blindata, Tapparelle Elettriche, Video Citofono

Chiudi tutte
Planimetrie
Photo 1
Photo 2
Generali
Photo 1Photo 2
Agenzia di riferimento
Studio I Portici srl
Studio I Portici srl
Viale Corassori, 72
41124 Modena MO
Rif. Annuncio VP2809 G11
Vantaggi GruppoMore
Puoi acquistare questo immobile anche rivolgendoti ad un altro Agente Immobiliare del Gruppo MORE
Guarda l'elenco
Richiedi informazioni
Invia
Condividi su
Condividi su Facebook Condividi su Twitter Condividi su Linkedin Condividi su Whatsapp
Cookie preference